---
title: "8-Afdeling 2"
description: "8-2"
date: "2025-09-29"
created: "2025-03-18"
---

-

https://maps.google.dk/?q=55.705211,8.747095

# Afdeling 2

## Velkommen til Afdeling 2

Åhavevej 1-23, afdelingen er opført i 1958 og består af 12 fritliggende huse i 1 plan + kælder. Egen indkørsel til enkelte huse og der kan der være carport/garage. Der er store haver til boligerne.
Boligerne tilhører Ansager Boligforening, og du skal derfor være opskrevet i denne boligorganisation, for at komme i betragtning.

## Fakta for afdelingen...

Fjernvarme

Ja

El eksl. i leje

Ja

Husdyr

Ja

Husdyr tilladt - én lille hund eller én indekat

Have

Ja

## Antal boliger i afdelingen

Almindelig bolig

3 værelses

Almindelig bolig

Boligtype

Værelser

Størrelse

Husleje

Indskud/dp

Plantegning

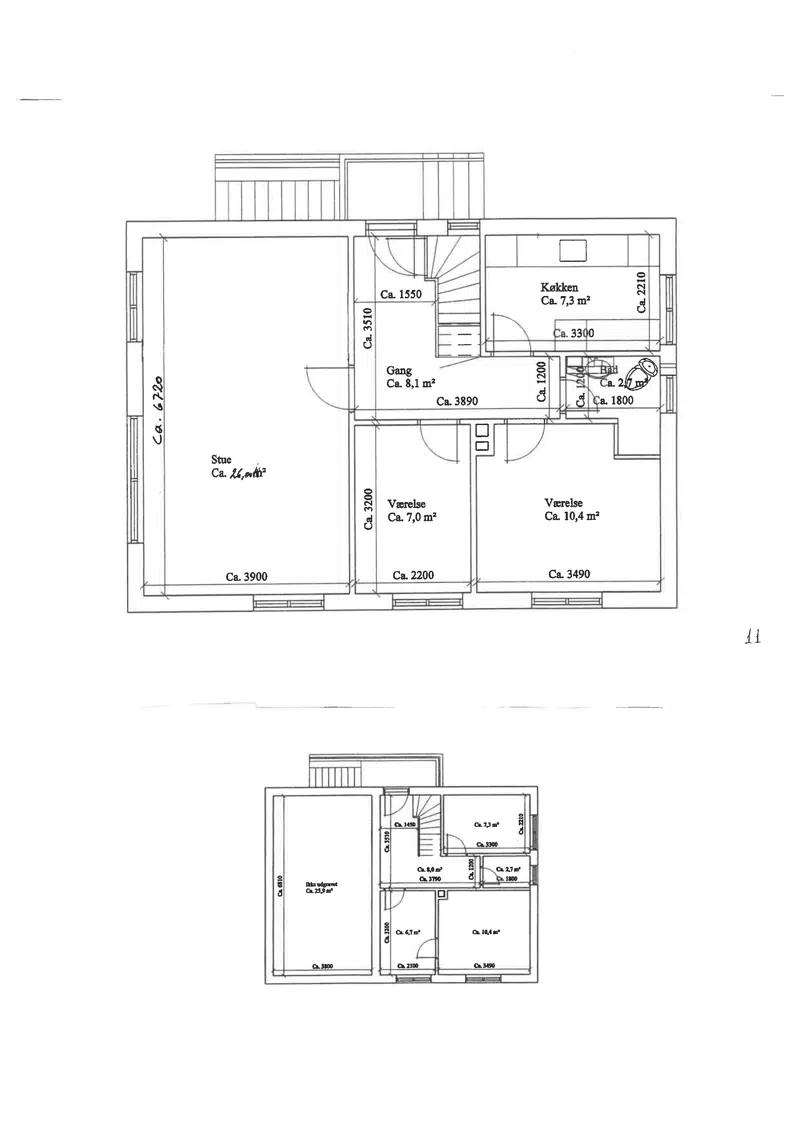
Almindelig bolig

3

78 m²

4398 kr.

22000 kr.

![](https://vardebolig.dk/i/MOLIRIMEDIA/cf933c5e-b523-45ea-4274-08dd8b99f0e0?width=800)

## Afdelingens afstande til

Shopping

meter

Bus

meter

Togstation

meter

Bibliotek

meter

Skole

meter

Børnehave

meter

## Afdelingsdokumenter

Her finder du nyttig information om din afdeling, såsom husorden, vedligeholdelse af dit lejemål, referater m.m.

###

                                                Referater

[Referat fra afdelingsmøder 2018, Ansager.pdf](https://vardebolig.dk/p/Files/Boligdata/Dokumenter/08-002/Referater/Referat-fra-afdelingsm&#xF8;der-2018--Ansager.pdf)
                                            [Referat fra afdelingsmøder 2019, Ansager.pdf](https://vardebolig.dk/p/Files/Boligdata/Dokumenter/08-002/Referater/Referat-fra-afdelingsm&#xF8;der-2019--Ansager.pdf)
                                            [Referat fra afdelingsmøder 2020, Ansager.pdf](https://vardebolig.dk/p/Files/Boligdata/Dokumenter/08-002/Referater/Referat-fra-afdelingsm&#xF8;der-2020--Ansager.pdf)
                                            [Referat fra afdelingsmøder 2022, Ansager.pdf](https://vardebolig.dk/p/Files/Boligdata/Dokumenter/08-002/Referater/Referat-fra-afdelingsm&#xF8;der-2022--Ansager.pdf)
                                            [Referat fra afdelingsmøder 2023, Ansager.pdf](https://vardebolig.dk/p/Files/Boligdata/Dokumenter/08-002/Referater/Referat-fra-afdelingsm&#xF8;der-2023--Ansager.pdf)
                                            [Referat fra afdelingsmøder 2024, Ansager.pdf](https://vardebolig.dk/p/Files/Boligdata/Dokumenter/08-002/Referater/Referat-fra-afdelingsm&#xF8;der-2024--Ansager.pdf)
                                            [Referat fra afdelingsmøder 2025, Ansager.pdf](https://vardebolig.dk/p/Files/Boligdata/Dokumenter/08-002/Referater/Referat-fra-afdelingsm&#xF8;der-2025--Ansager.pdf)
