---
title: "8-Afdeling 4"
description: "8-4"
date: "2025-09-29"
created: "2025-03-18"
---

-
-
-
-

https://maps.google.dk/?q=55.701992,8.762698

# Afdeling 4

## Velkommen til Afdeling 4

Fiskerivej & Hejrevej, Ansager & Kornvangen, Skovlund, afdelingen er opført i 1982 som rækkehusbyggeri og består af 31 rækkehuse i 1 plan. Fælles parkeringspladser. Der er have til boligerne. Det er ikke tilladt at holde hund, fra og med 27.09.2022.
Boligerne tilhører Ansager Boligforening, og du skal derfor være opskrevet i denne boligorganisation, for at komme i betragtning.

## Fakta for afdelingen...

Fjernvarme

Ja

El eksl. i leje

Ja

Husdyr

Ja

Såfremt boligtager ønsker at anskaffe et husdyr, skal der, før anskaffelse heraf, ansøges om tilladelse hos boligselskabet. Er der ikke ansøgt, og givet tilladelse, kan husdyret forlanges fjernet. Der kan kun ansøges om kat og ikke hund!

Have

Ja

## Antal boliger i afdelingen

Almindelig bolig

2 værelses

Almindelig bolig

Almindelig bolig

3 værelses

Almindelig bolig

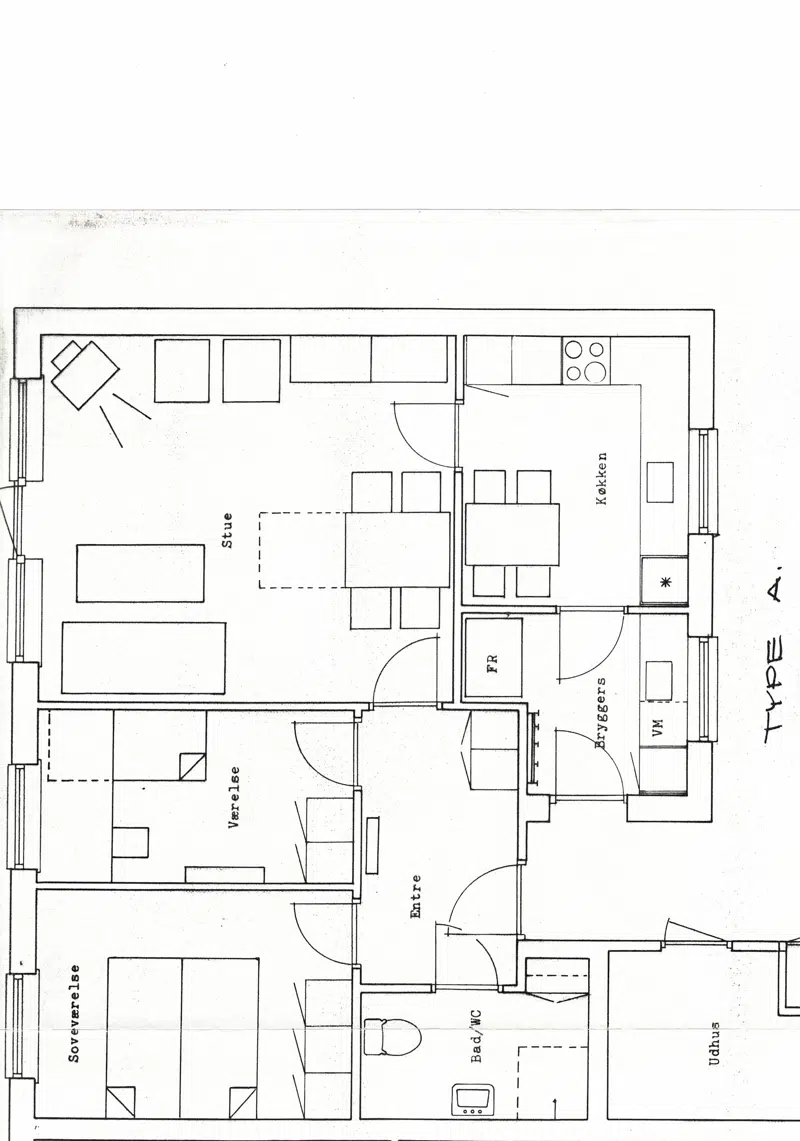
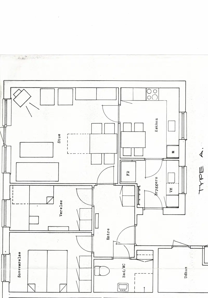
Boligtype

Værelser

Størrelse

Husleje

Indskud/dp

Plantegning

Almindelig bolig

2

65 m²

3987 kr.

10400 kr.

Almindelig bolig

2

65 m²

3987 kr.

10400 kr.

![](https://vardebolig.dk/i/MOLIRIMEDIA/49db6ef8-896e-467d-4150-08dd8b99f0e0?width=800)

Almindelig bolig

2

65 m²

3695 kr.

10400 kr.

Almindelig bolig

2

65 m²

3695 kr.

10400 kr.

![](https://vardebolig.dk/i/MOLIRIMEDIA/a1aae5a6-9b4b-4a7b-4210-08dd8b99f0e0?width=800)

Almindelig bolig

2

66 m²

3225 kr.

10400 kr.

![](https://vardebolig.dk/i/MOLIRIMEDIA/2a11c4ce-0514-4d37-41db-08dd8b99f0e0?width=800)

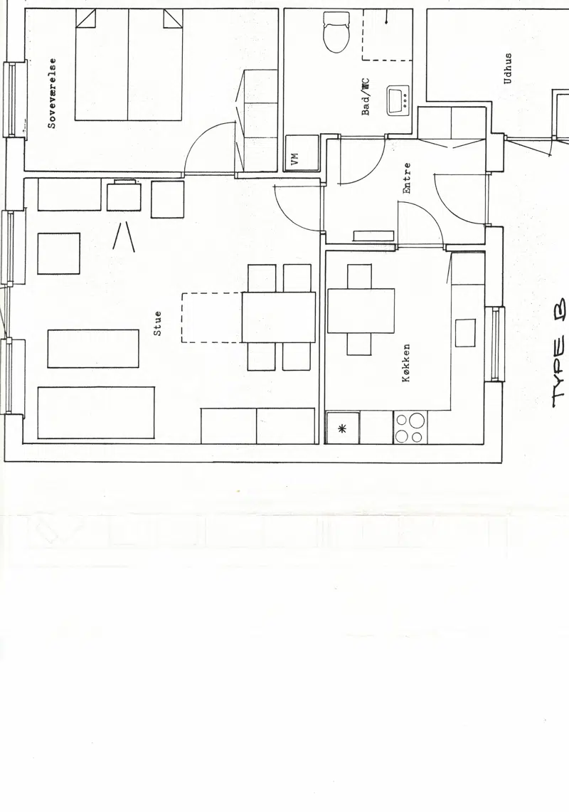
Almindelig bolig

3

85 m²

4983 kr.

13200 kr.

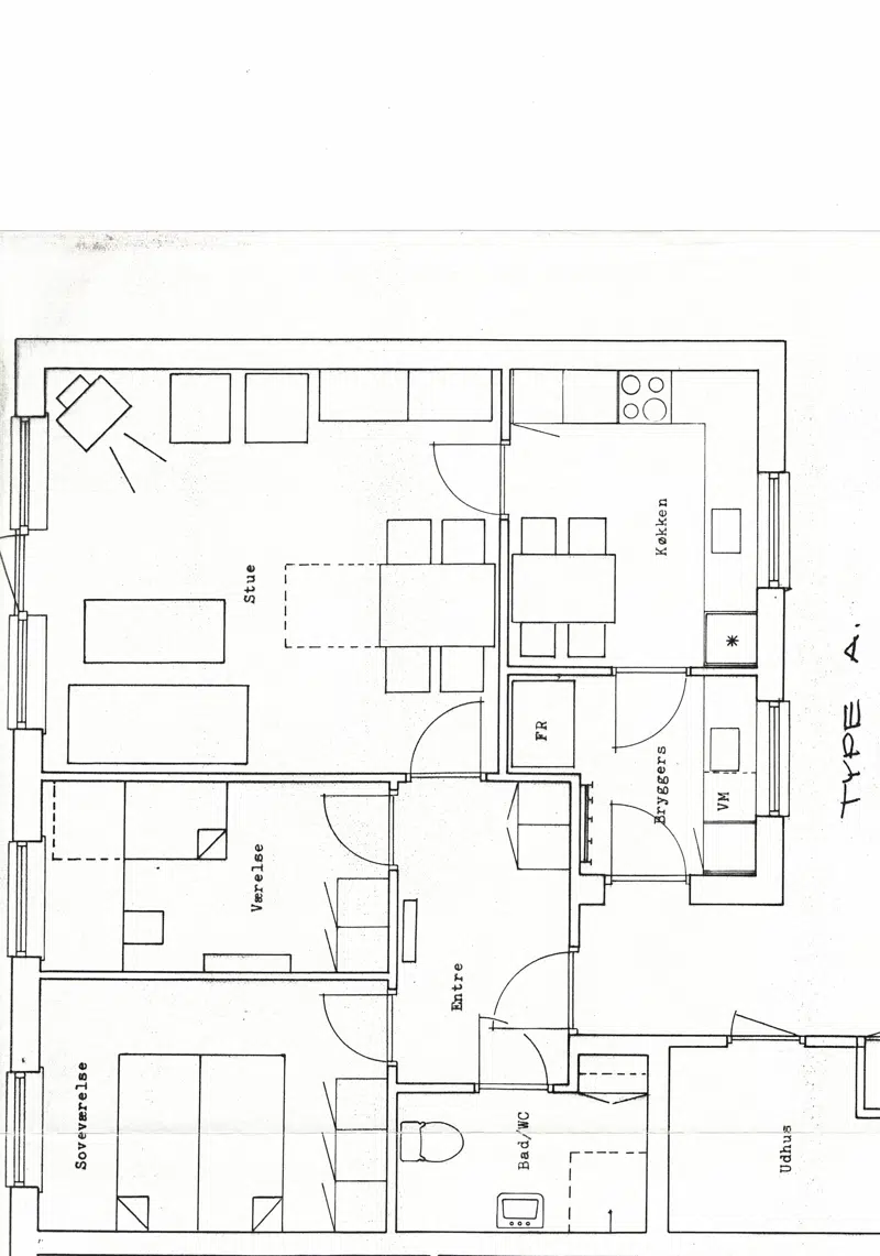
Almindelig bolig

3

85 m²

4983 kr.

13200 kr.

![](https://vardebolig.dk/i/MOLIRIMEDIA/d8e5655d-679a-44dd-4225-08dd8b99f0e0?width=800)

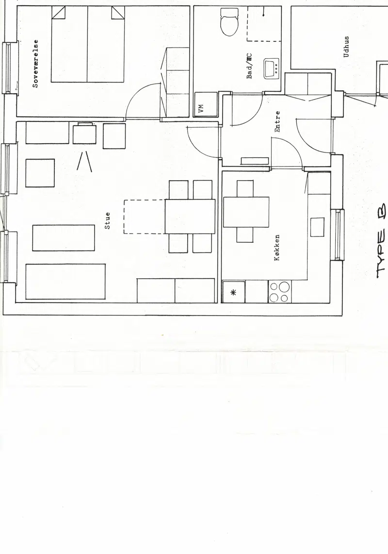
Almindelig bolig

3

85 m²

4615 kr.

13200 kr.

![](https://vardebolig.dk/i/MOLIRIMEDIA/3a41eb8e-945a-4477-40f7-08dd8b99f0e0?width=800)

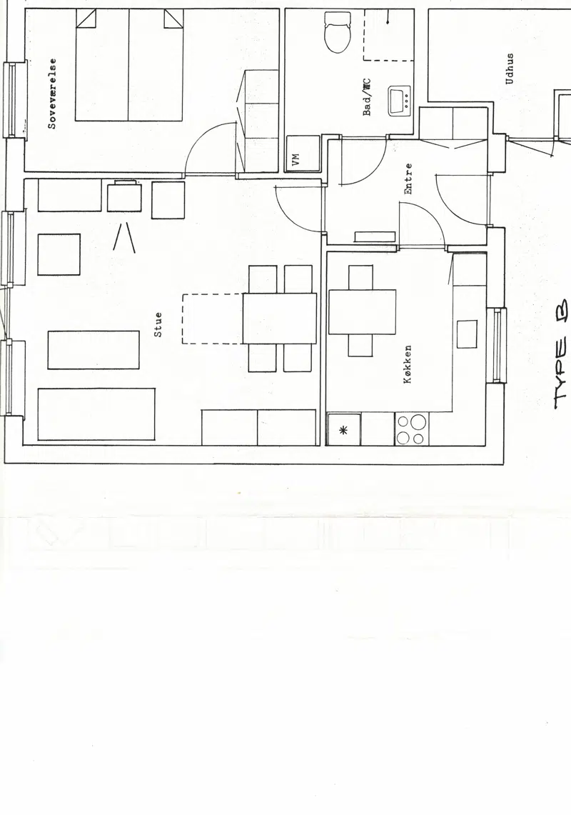
Almindelig bolig

3

86 m²

4097 kr.

13200 kr.

![](https://vardebolig.dk/i/MOLIRIMEDIA/647d136b-ddea-45fb-409f-08dd8b99f0e0?width=800)

## Afdelingens afstande til

Shopping

meter

Bus

meter

Togstation

meter

Bibliotek

meter

Skole

meter

Børnehave

meter

## Afdelingsdokumenter

Her finder du nyttig information om din afdeling, såsom husorden, vedligeholdelse af dit lejemål, referater m.m.

###

                                                Referater

[Referat fra afdelingsmøder 2018, Ansager.pdf](https://vardebolig.dk/p/Files/Boligdata/Dokumenter/08-004/Referater/Referat-fra-afdelingsm&#xF8;der-2018--Ansager.pdf)
                                            [Referat fra afdelingsmøder 2019, Ansager.pdf](https://vardebolig.dk/p/Files/Boligdata/Dokumenter/08-004/Referater/Referat-fra-afdelingsm&#xF8;der-2019--Ansager.pdf)
                                            [Referat fra afdelingsmøder 2020, Ansager.pdf](https://vardebolig.dk/p/Files/Boligdata/Dokumenter/08-004/Referater/Referat-fra-afdelingsm&#xF8;der-2020--Ansager.pdf)
                                            [Referat fra afdelingsmøder 2022, Ansager.pdf](https://vardebolig.dk/p/Files/Boligdata/Dokumenter/08-004/Referater/Referat-fra-afdelingsm&#xF8;der-2022--Ansager.pdf)
                                            [Referat fra afdelingsmøder 2023, Ansager.pdf](https://vardebolig.dk/p/Files/Boligdata/Dokumenter/08-004/Referater/Referat-fra-afdelingsm&#xF8;der-2023--Ansager.pdf)
                                            [Referat fra afdelingsmøder 2024, Ansager.pdf](https://vardebolig.dk/p/Files/Boligdata/Dokumenter/08-004/Referater/Referat-fra-afdelingsm&#xF8;der-2024--Ansager.pdf)
                                            [Referat fra afdelingsmøder 2025, Ansager.pdf](https://vardebolig.dk/p/Files/Boligdata/Dokumenter/08-004/Referater/Referat-fra-afdelingsm&#xF8;der-2025--Ansager.pdf)
