---
title: "99-Afdeling 0104"
description: "99-104"
date: "2026-03-23"
created: "2025-03-18"
---

-
-
-
-
-
-
-
-
-
-

https://maps.google.dk/?q=55.6955939,8.9972942

# Afdeling 0104

## Velkommen til Afdeling 0104

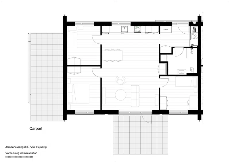
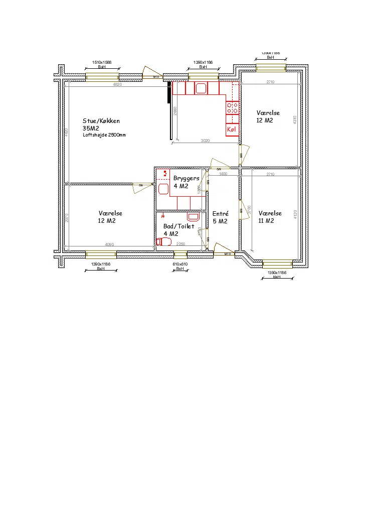
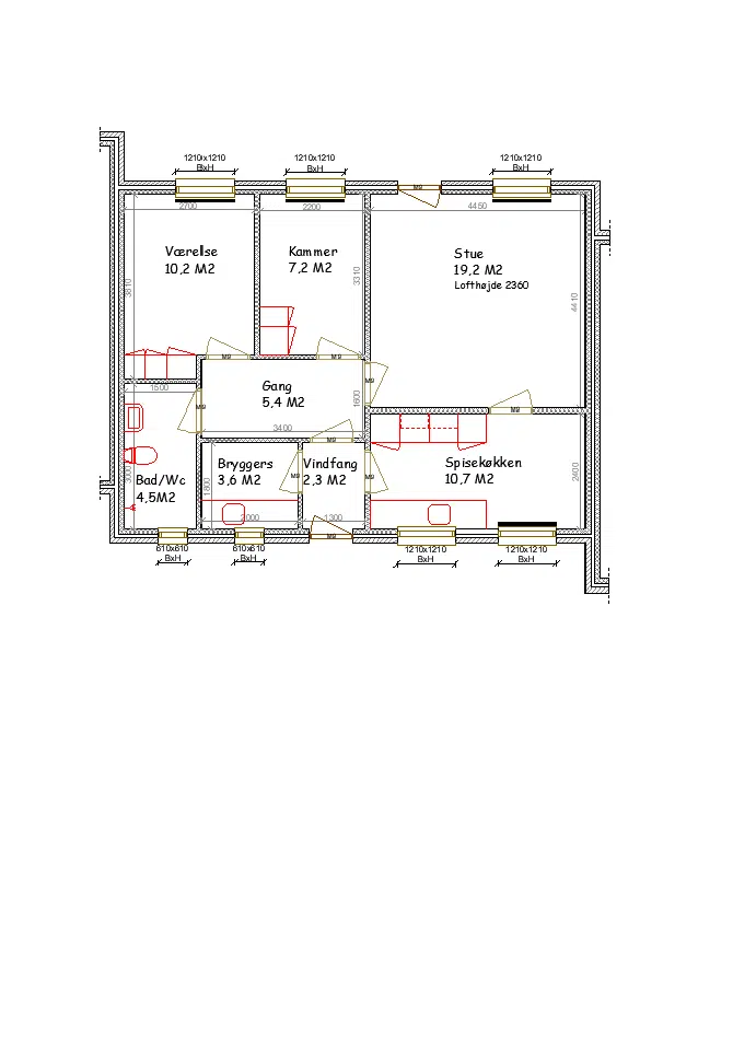
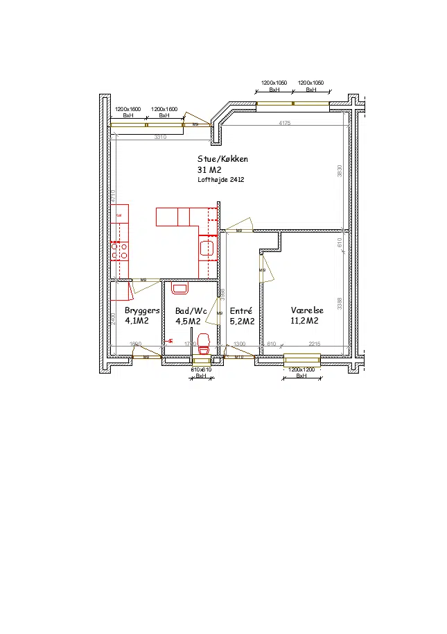
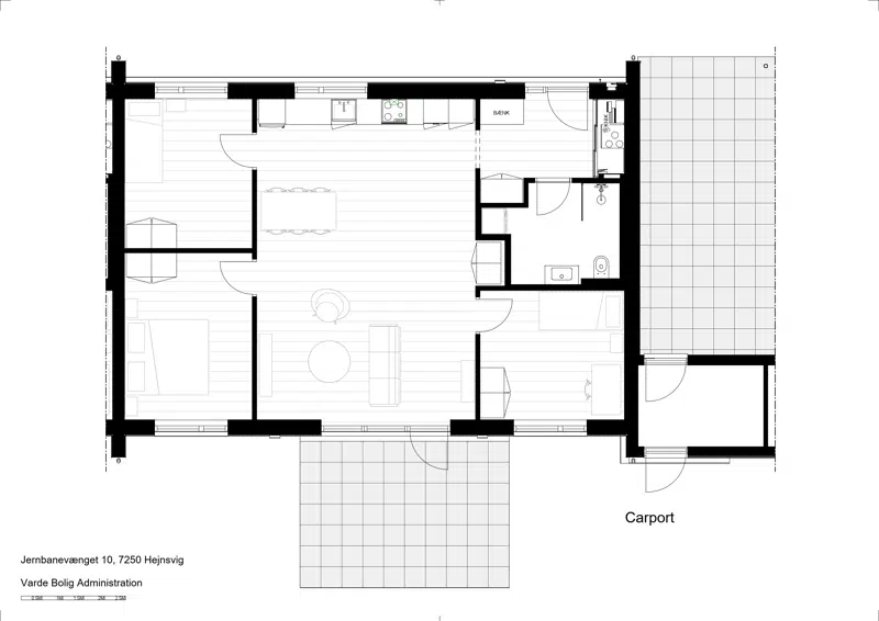
Boligerne (tæt/lav) er beliggende på Vinkelvej 22-74, Smedevej 9-29, Høstvej 6-34, Østre Ringvej 11 A-D (ungdomsboliger) og Skovhøjen 1-23 & 2-20, og Jernbanevænget 8-18 + 3-9 i  Hejnsvig.
-
Dyr ok - men ansøgning om husdyrhold skal fremsendes, det er dog ikke tilladt at holde husdyr på adressen: Høstvej 6-22 & Østre Ringvej.

## Fakta for afdelingen...

Fjernvarme

Ja

El eksl. i leje

Ja

Husdyr

Ja

Dyr ok - men ansøgning om husdyrhold skal fremsendes.
Det er dog ikke tilladt at holde husdyr på adressen: Høstvej 6-22 & Østre Ringvej.

Have

Ja

## Antal boliger i afdelingen

Ungdomsbolig

1 værelses

Ungdomsbolig

Almindelig bolig

2 værelses

Almindelig bolig

Almindelig bolig

3 værelses

Almindelig bolig

Almindelig bolig

4 værelses

Almindelig bolig

Boligtype

Værelser

Størrelse

Husleje

Indskud/dp

Plantegning

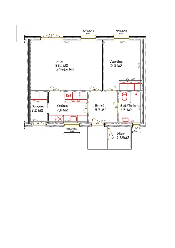
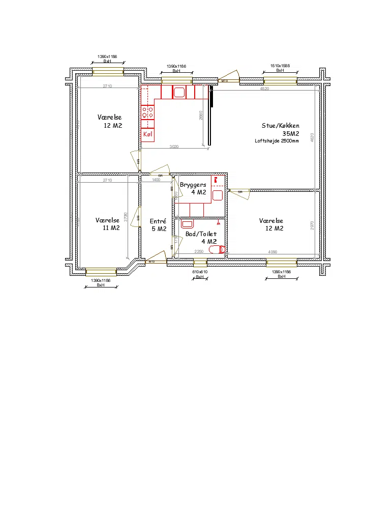
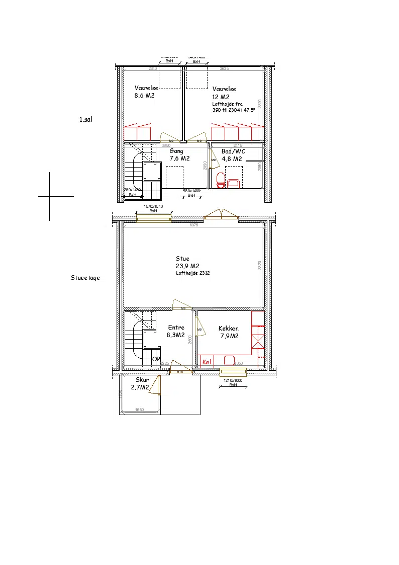
Almindelig bolig

2

69 m²

5153 kr.

12929 kr.

Almindelig bolig

2

68 m²

4936 kr.

12212 kr.

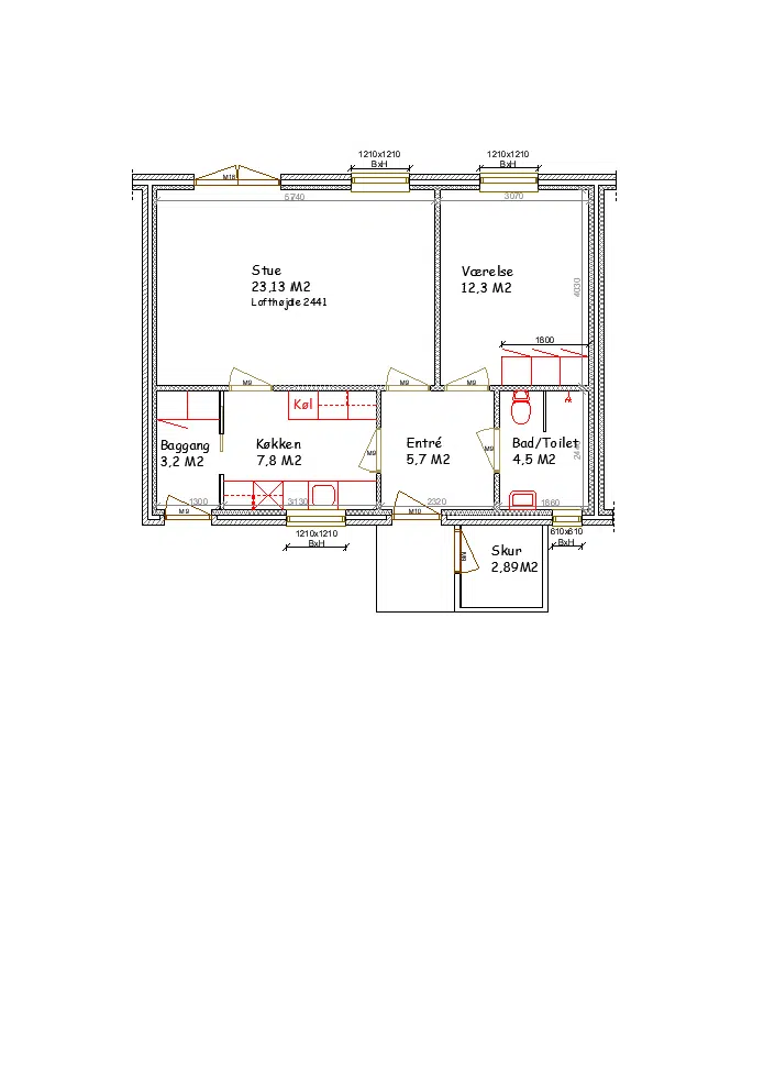
![](https://vardebolig.dk/i/MOLIRIMEDIA/5da2bf00-9816-475f-4e34-08dd8b99f0e0?width=800)

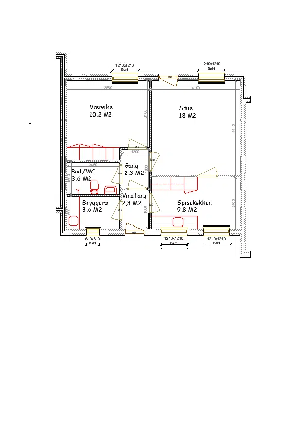
Almindelig bolig

2

67 m²

4494 kr.

10028 kr.

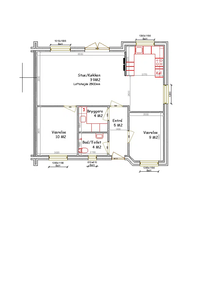
![](https://vardebolig.dk/i/MOLIRIMEDIA/a54d0d07-d302-4674-4e57-08dd8b99f0e0?width=800)

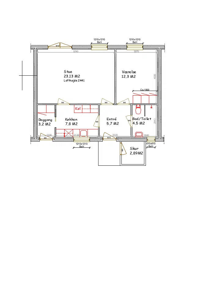
Almindelig bolig

2

68 m²

4632 kr.

9173 kr.

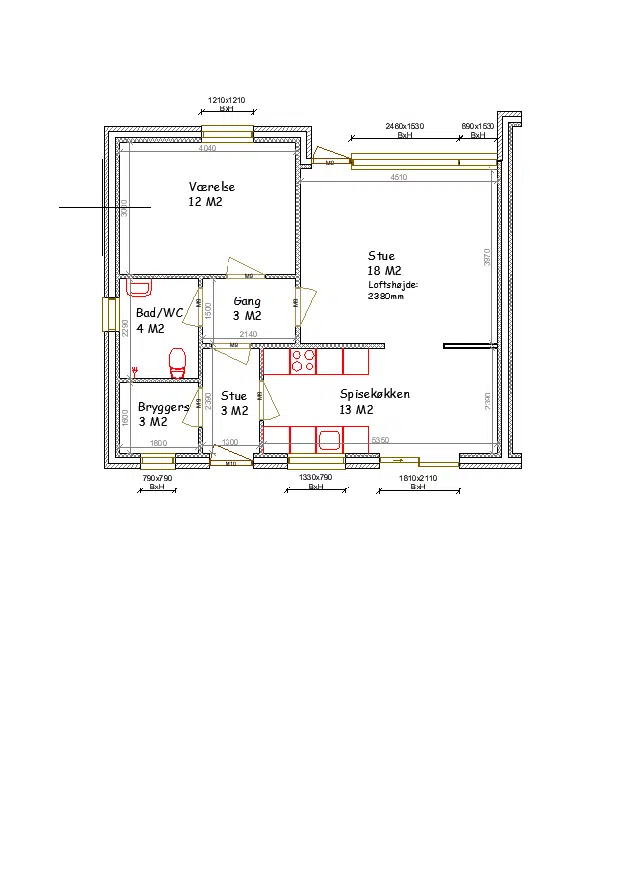
![](https://vardebolig.dk/i/MOLIRIMEDIA/4e9a3286-d241-41ef-4e47-08dd8b99f0e0?width=800)

Almindelig bolig

2

69 m²

4602 kr.

9172 kr.

![](https://vardebolig.dk/i/MOLIRIMEDIA/cdb943e3-16aa-4f81-4e36-08dd8b99f0e0?width=800)

Almindelig bolig

2

63 m²

3771 kr.

6300 kr.

![](https://vardebolig.dk/i/MOLIRIMEDIA/1fd6b95e-3de6-49a2-4e31-08dd8b99f0e0?width=800)

Almindelig bolig

2

64 m²

3771 kr.

6300 kr.

![](https://vardebolig.dk/i/MOLIRIMEDIA/43ee749b-b5d3-489b-4e8d-08dd8b99f0e0?width=800)

Almindelig bolig

2

66 m²

4592 kr.

9893 kr.

![](https://vardebolig.dk/i/MOLIRIMEDIA/00dae169-9747-40c2-4e5f-08dd8b99f0e0?width=800)

Almindelig bolig

2

67 m²

4592 kr.

9893 kr.

![](https://vardebolig.dk/i/MOLIRIMEDIA/f1d4ee3b-baf3-4a24-4eae-08dd8b99f0e0?width=800)

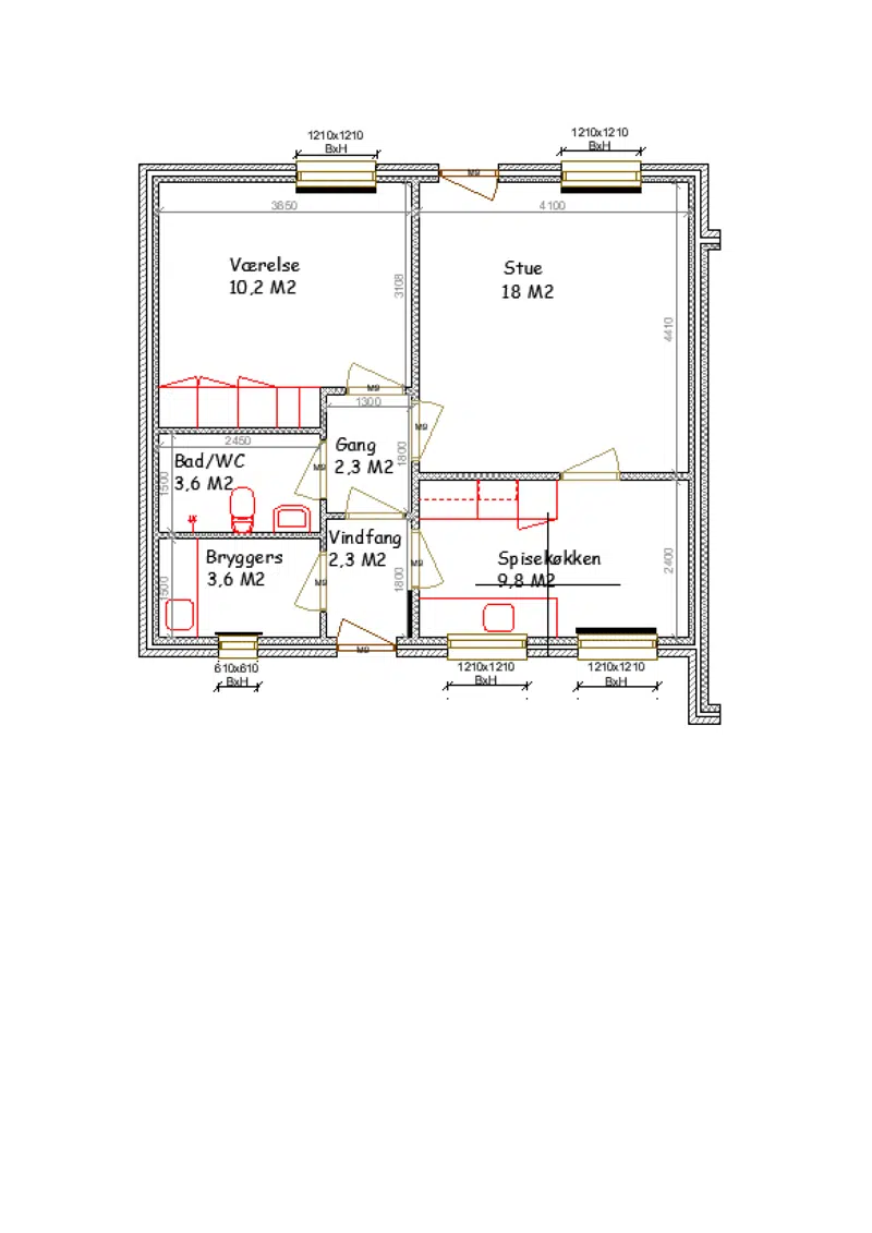
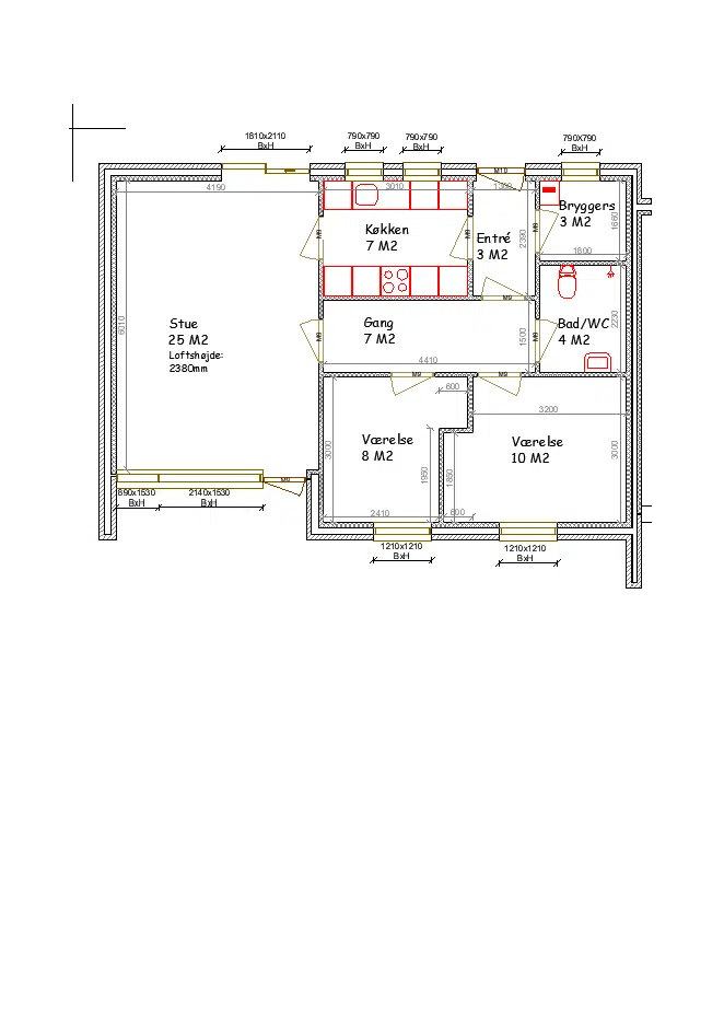
Almindelig bolig

3

93 m²

6287 kr.

17872 kr.

Almindelig bolig

3

87 m²

5981 kr.

16541 kr.

Almindelig bolig

3

93 m²

6139 kr.

16300 kr.

Almindelig bolig

3

86 m²

5734 kr.

15624 kr.

Almindelig bolig

3

89 m²

6133 kr.

13037 kr.

![](https://vardebolig.dk/i/MOLIRIMEDIA/76da1f63-25c0-49bd-4e88-08dd8b99f0e0?width=800)

Almindelig bolig

3

86 m²

6053 kr.

13037 kr.

![](https://vardebolig.dk/i/MOLIRIMEDIA/f4964b23-c9d8-4d0c-4e6c-08dd8b99f0e0?width=800)

Almindelig bolig

3

82 m²

4850 kr.

10992 kr.

![](https://vardebolig.dk/i/MOLIRIMEDIA/8a975c4f-b9b3-4b92-4e3c-08dd8b99f0e0?width=800)

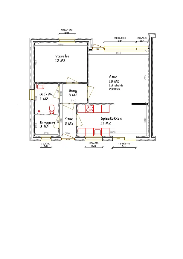
Almindelig bolig

3

74 m²

4829 kr.

7500 kr.

![](https://vardebolig.dk/i/MOLIRIMEDIA/9a01d1b2-c776-4ad8-4ea8-08dd8b99f0e0?width=800)

Almindelig bolig

3

75 m²

4409 kr.

7500 kr.

![](https://vardebolig.dk/i/MOLIRIMEDIA/f6c16d7b-c31b-46cd-4e9b-08dd8b99f0e0?width=800)

Almindelig bolig

3

86 m²

6696 kr.

20637 kr.

![](https://vardebolig.dk/i/MOLIRIMEDIA/18eac2e7-e1fd-4709-4ea0-08dd8b99f0e0?width=800)

Almindelig bolig

3

88 m²

5453 kr.

12484 kr.

![](https://vardebolig.dk/i/MOLIRIMEDIA/64c0f565-fac4-4b70-4e80-08dd8b99f0e0?width=800)

Almindelig bolig

3

90 m²

5724 kr.

12484 kr.

![](https://vardebolig.dk/i/MOLIRIMEDIA/928d5369-214c-47d9-4e3a-08dd8b99f0e0?width=800)

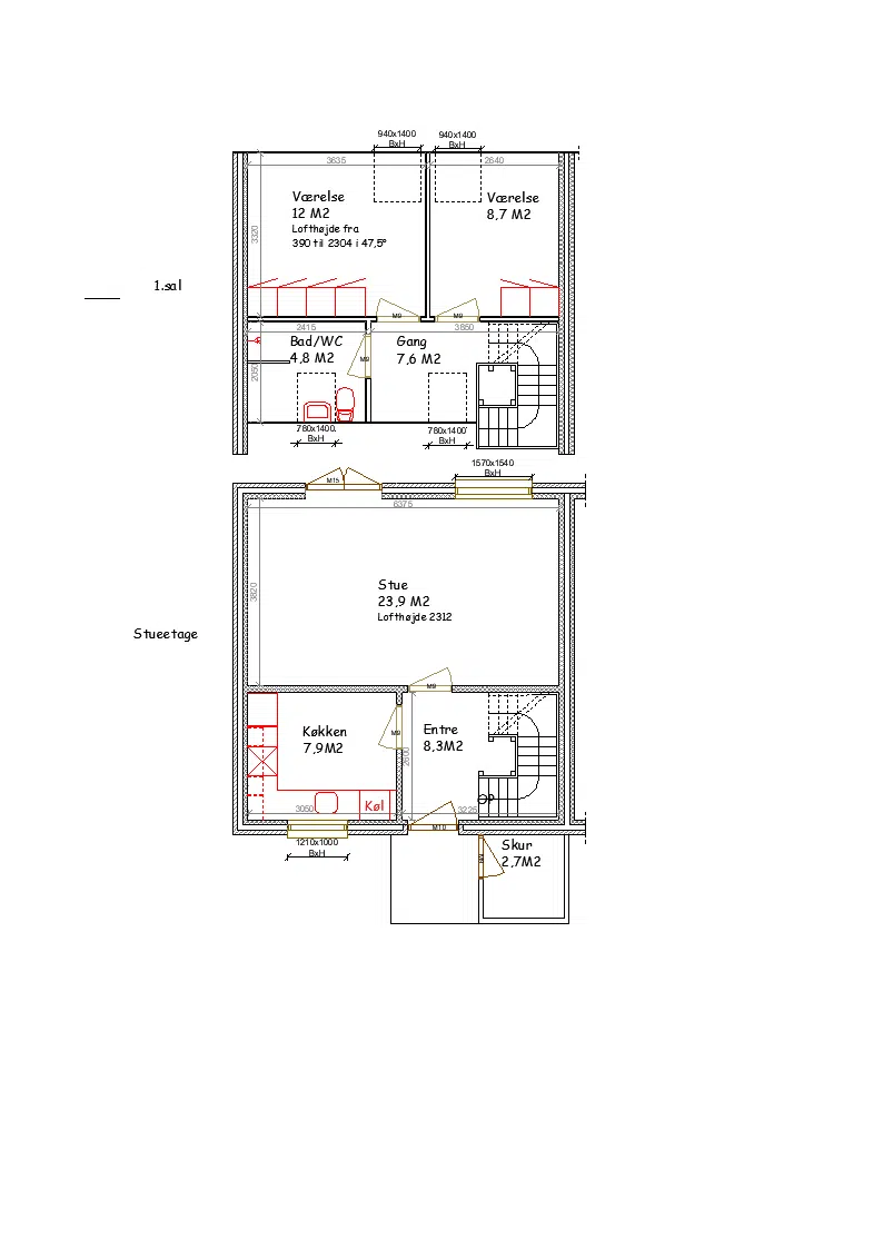
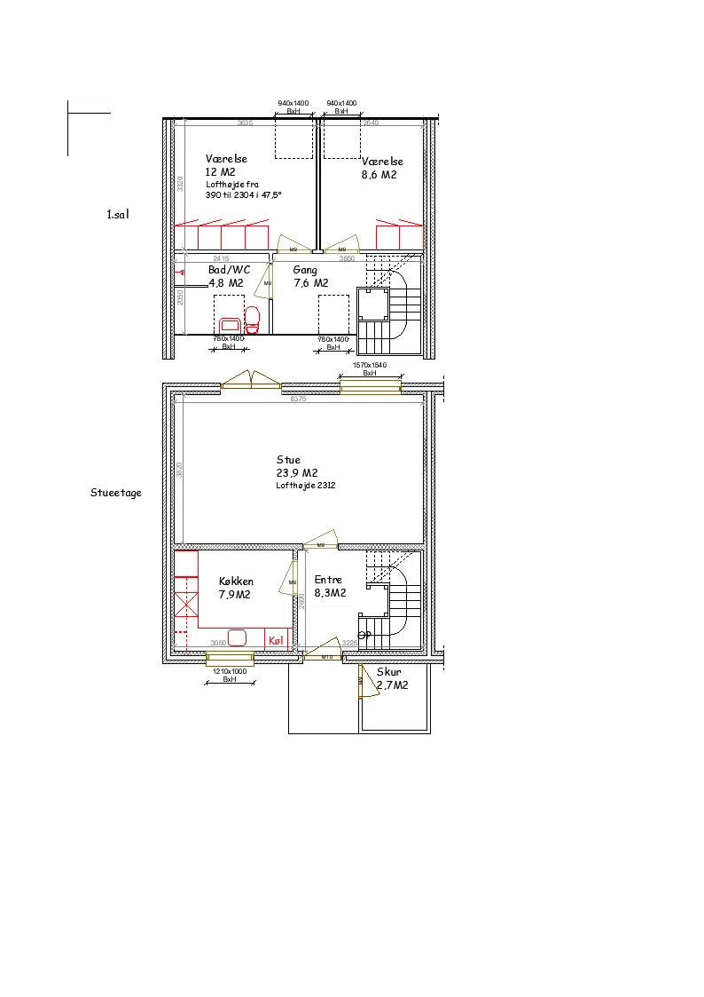
Almindelig bolig

4

105 m²

8035 kr.

47027 kr.

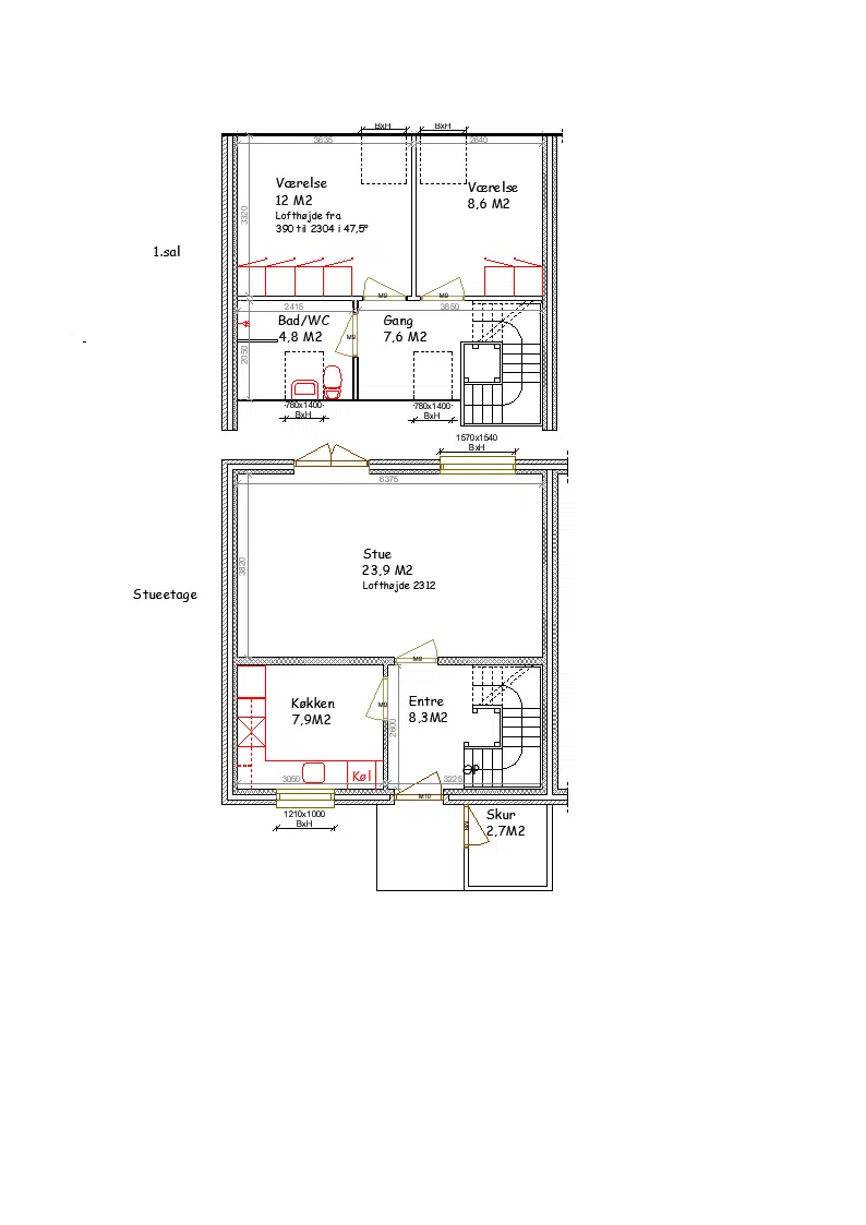
![](https://vardebolig.dk/i/MOLIRIMEDIA/4ae313d0-6834-4c4e-d4aa-08ddeae98d1d?width=800)

Almindelig bolig

4

95 m²

6730 kr.

23059 kr.

![](https://vardebolig.dk/i/MOLIRIMEDIA/d86ad08c-3027-412d-4e3b-08dd8b99f0e0?width=800)

Almindelig bolig

4

97 m²

6730 kr.

23070 kr.

![](https://vardebolig.dk/i/MOLIRIMEDIA/4fd13b5a-5224-4fb2-4e7f-08dd8b99f0e0?width=800)

Ungdomsbolig

1

29 m²

1662 kr.

2500 kr.

![](https://vardebolig.dk/i/MOLIRIMEDIA/6080646c-63c2-45d0-4eaa-08dd8b99f0e0?width=800)

Ungdomsbolig

1

30 m²

1662 kr.

2500 kr.

![](https://vardebolig.dk/i/MOLIRIMEDIA/b6bc99d3-2df8-4e38-4e66-08dd8b99f0e0?width=800)

## Afdelingens afstande til

Shopping

meter

Bus

meter

Togstation

meter

Bibliotek

meter

Skole

meter

Børnehave

meter

## Medlemmer af afdelingsbestyrelsen

Navn

Titel

Jan Pedersen

Formand

Helle Nordby Larsen

Næstformand

Kirsten Kjær

Bestyrelsesmedlem

Majbrit Erichsen

Suppleant

## Afdelingsdokumenter

Her finder du nyttig information om din afdeling, såsom husorden, vedligeholdelse af dit lejemål, referater m.m.

###

                                                Referater

[0104, 0156, 0173 og 0174, Referat afdelingsmøde 10.09.24, underskrevet.pdf](https://vardebolig.dk/p/Files/Boligdata/Dokumenter/99-104/Referater/0104--0156--0173-og-0174--Referat-afdelingsm&#xF8;de-10.09.24--underskrevet.pdf)
                                            [0104, 0156, 0173 og 0174, Referat afdelingsmøde 23.09.25, underskrevet.pdf](https://vardebolig.dk/p/Files/Boligdata/Dokumenter/99-104/Referater/0104--0156--0173-og-0174--Referat-afdelingsm&#xF8;de-23.09.25--underskrevet.pdf)
                                            [0104, 0156, 0173 og 0174 referat afdelingsmøde underskrevet 2020.pdf](https://vardebolig.dk/p/Files/Boligdata/Dokumenter/99-104/Referater/0104--0156--0173-og-0174-referat-afdelingsm&#xF8;de-underskrevet-2020.pdf)
                                            [0104, 0156, 0173 og 0174 referat afdelingsmøde underskrevet 2021.pdf](https://vardebolig.dk/p/Files/Boligdata/Dokumenter/99-104/Referater/0104--0156--0173-og-0174-referat-afdelingsm&#xF8;de-underskrevet-2021.pdf)
                                            [0104,0156,0173,0174, 2022 underskrevet.pdf](https://vardebolig.dk/p/Files/Boligdata/Dokumenter/99-104/Referater/0104-0156-0173-0174--2022-underskrevet.pdf)
                                            [0104,0156,0173,0174, 2023 underskrevet.pdf](https://vardebolig.dk/p/Files/Boligdata/Dokumenter/99-104/Referater/0104-0156-0173-0174--2023-underskrevet.pdf)
                                            [0104 og 0173 Referat ekstraordinært afdelingsmøde 2023 underskrevet.pdf](https://vardebolig.dk/p/Files/Boligdata/Dokumenter/99-104/Referater/0104-og-0173-Referat-ekstraordin&#xE6;rt-afdelingsm&#xF8;de-2023-underskrevet.pdf)

###

                                                Dagsordner

[Afd. 0104,0156,0173,0174, dagsorden 2020.pdf](https://vardebolig.dk/p/Files/Boligdata/Dokumenter/99-104/Dagsordner/Afd.-0104-0156-0173-0174--dagsorden-2020.pdf)
                                            [Afd. 0104,0156,0173,0174, dagsorden 2021, forslag.pdf](https://vardebolig.dk/p/Files/Boligdata/Dokumenter/99-104/Dagsordner/Afd.-0104-0156-0173-0174--dagsorden-2021--forslag.pdf)
                                            [Afd. 0104,0156,0173,0174, dagsorden 2021.pdf](https://vardebolig.dk/p/Files/Boligdata/Dokumenter/99-104/Dagsordner/Afd.-0104-0156-0173-0174--dagsorden-2021.pdf)
                                            [Afd. 0104,0156,0173,0174, dagsorden 2022.pdf](https://vardebolig.dk/p/Files/Boligdata/Dokumenter/99-104/Dagsordner/Afd.-0104-0156-0173-0174--dagsorden-2022.pdf)
                                            [Afd. 0104,0156,0173,0174, dagsorden 2023.pdf](https://vardebolig.dk/p/Files/Boligdata/Dokumenter/99-104/Dagsordner/Afd.-0104-0156-0173-0174--dagsorden-2023.pdf)
                                            [Afd. 0104+0156+0173+0174, dagsorden 2024.pdf](https://vardebolig.dk/p/Files/Boligdata/Dokumenter/99-104/Dagsordner/Afd.-0104-0156-0173-0174--dagsorden-2024.pdf)
                                            [Afd. 0104+0156+0173+0174, dagsorden 2025, forslag.doc](https://vardebolig.dk/p/Files/Boligdata/Dokumenter/99-104/Dagsordner/Afd.-0104-0156-0173-0174--dagsorden-2025--forslag.doc)
                                            [Afd. 0104+0156+0173+0174, dagsorden 2025.pdf](https://vardebolig.dk/p/Files/Boligdata/Dokumenter/99-104/Dagsordner/Afd.-0104-0156-0173-0174--dagsorden-2025.pdf)

###

                                                Dokumenter

[0104, 2020, Vedligeholdelsesreglement, VBA, underskrevet.pdf](https://vardebolig.dk/p/Files/Boligdata/Dokumenter/99-104/Dokumenter/0104--2020--Vedligeholdelsesreglement--VBA--underskrevet.pdf)
                                            [Afd. 0104, Husorden 2023.pdf](https://vardebolig.dk/p/Files/Boligdata/Dokumenter/99-104/Dokumenter/Afd.-0104--Husorden-2023.pdf)
                                            [Afd. 0104, Råderetskatalog 2023.pdf](https://vardebolig.dk/p/Files/Boligdata/Dokumenter/99-104/Dokumenter/Afd.-0104--R&#xE5;deretskatalog-2023.pdf)
