---
title: "99-Afdeling 0106"
description: "99-106"
date: "2025-12-12"
created: "2025-03-18"
---

-
-
-
-
-
-
-
-

https://maps.google.dk/?q=55.714034,8.6050424

# Afdeling 0106

## Velkommen til Afdeling 0106

Boligerne (tæt/lav) er beliggende på Thorsvej 11 A - 35 B (nr. 29 er ungdomsboliger), Storegade 1 A-G, Lærkevej 7-15 og Søndervang 15 A - 21 B i Tistrup. Doktorvej 1 B - 1 C i centrum af Ansager, samt Solbakken 24-32 i den østlige del af Skovlund ved Ansager. Kølhusvej 10-12 i den nordlige del af Hodde. Skrænten 12-18 i den østlige del af Ølgod. Lundagervej 10-30 i den østlige del af Horne ved Varde.

## Fakta for afdelingen...

Fjernvarme

Ja

Naturgas

Ja

El eksl. i leje

Ja

Husdyr

Ja

Dyr ok - men ansøgning om husdyrhold skal fremsendes.

Have

Ja

Altan

Ja

## Antal boliger i afdelingen

Ungdomsbolig

1 værelses

Ungdomsbolig

Almindelig bolig

2 værelses

Almindelig bolig

Almindelig bolig

3 værelses

Almindelig bolig

Almindelig bolig

4 værelses

Almindelig bolig

Boligtype

Værelser

Størrelse

Husleje

Indskud/dp

Plantegning

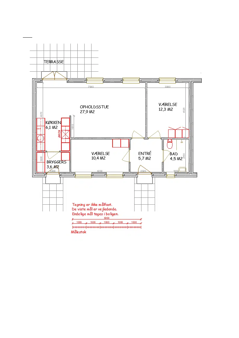
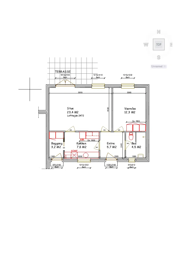
Almindelig bolig

2

67 m²

4844 kr.

10164 kr.

![](https://vardebolig.dk/i/MOLIRIMEDIA/449cf93d-3728-4f00-4137-08dd8b99f0e0?width=800)

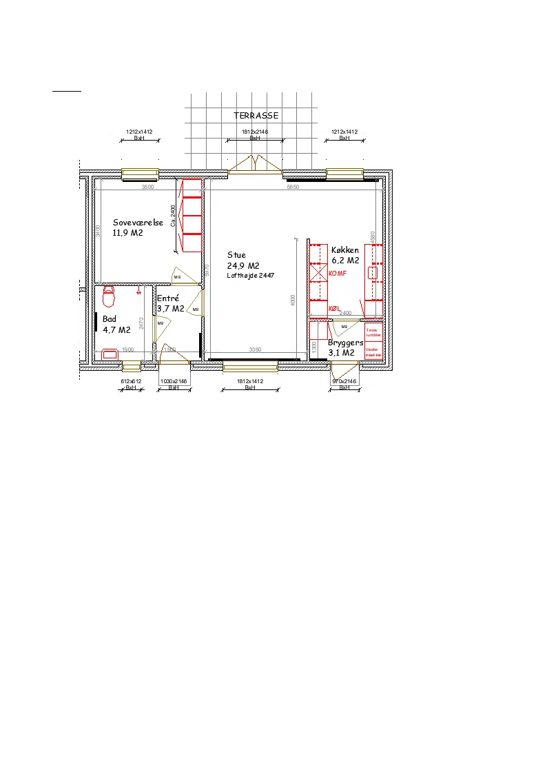
Almindelig bolig

2

67 m²

4316 kr.

9067 kr.

![](https://vardebolig.dk/i/MOLIRIMEDIA/623ac480-54eb-441b-4e49-08dd8b99f0e0?width=800)

Almindelig bolig

2

65 m²

4739 kr.

10696 kr.

![](https://vardebolig.dk/i/MOLIRIMEDIA/78b2e683-8cad-4992-4240-08dd8b99f0e0?width=800)

Almindelig bolig

2

67 m²

4934 kr.

10561 kr.

![](https://vardebolig.dk/i/MOLIRIMEDIA/9ef0486b-80c5-4e6b-4e41-08dd8b99f0e0?width=800)

Almindelig bolig

2

67 m²

4934 kr.

10561 kr.

![](https://vardebolig.dk/i/MOLIRIMEDIA/ebf65b28-71b5-4189-4e60-08dd8b99f0e0?width=800)

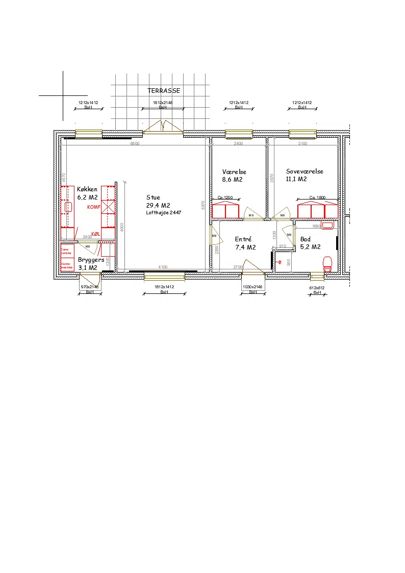
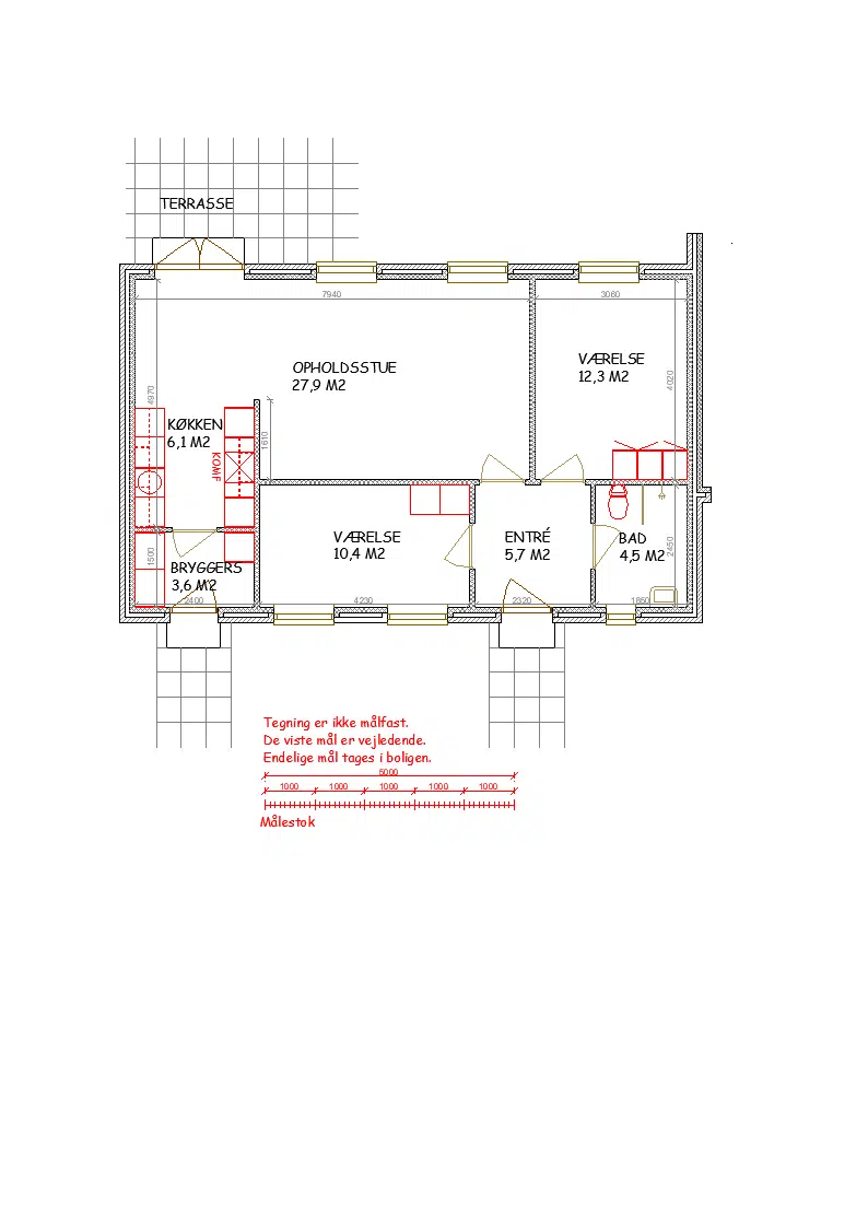
Almindelig bolig

3

85.8 m²

6826 kr.

30300 kr.

![](https://vardebolig.dk/i/MOLIRIMEDIA/56a801a2-4197-4f12-4e79-08dd8b99f0e0?width=800)

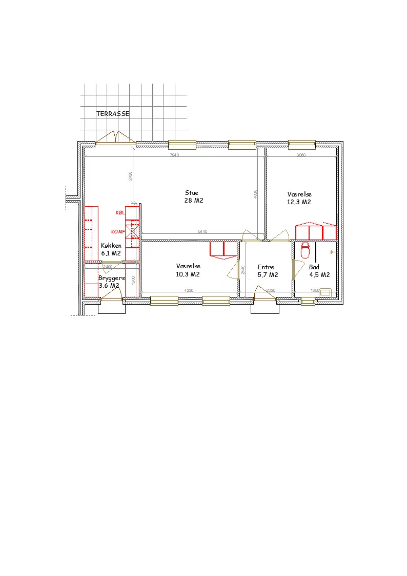
Almindelig bolig

3

81.4 m²

6347 kr.

21250 kr.

![](https://vardebolig.dk/i/MOLIRIMEDIA/5bcd18cf-e681-4f1b-4e2a-08dd8b99f0e0?width=800)

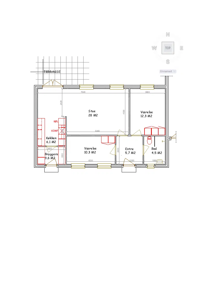
Almindelig bolig

3

90.2 m²

6900 kr.

23065 kr.

![](https://vardebolig.dk/i/MOLIRIMEDIA/4ade00d4-4bbc-4c7d-4ea4-08dd8b99f0e0?width=800)

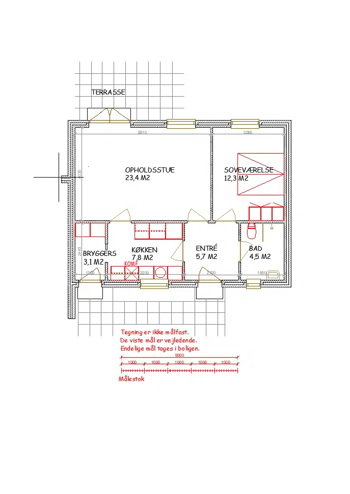
Almindelig bolig

3

84 m²

5583 kr.

12743 kr.

![](https://vardebolig.dk/i/MOLIRIMEDIA/9392f647-3a3e-4077-422c-08dd8b99f0e0?width=800)

Almindelig bolig

3

98 m²

5842 kr.

12743 kr.

![](https://vardebolig.dk/i/MOLIRIMEDIA/7c51235b-c73c-4721-41f2-08dd8b99f0e0?width=800)

Almindelig bolig

3

84 m²

5001 kr.

11929 kr.

![](https://vardebolig.dk/i/MOLIRIMEDIA/9cb35bd6-12fc-43c7-4e35-08dd8b99f0e0?width=800)

Almindelig bolig

3

85 m²

5515 kr.

13988 kr.

![](https://vardebolig.dk/i/MOLIRIMEDIA/f60056d1-d53a-4458-42af-08dd8b99f0e0?width=800)

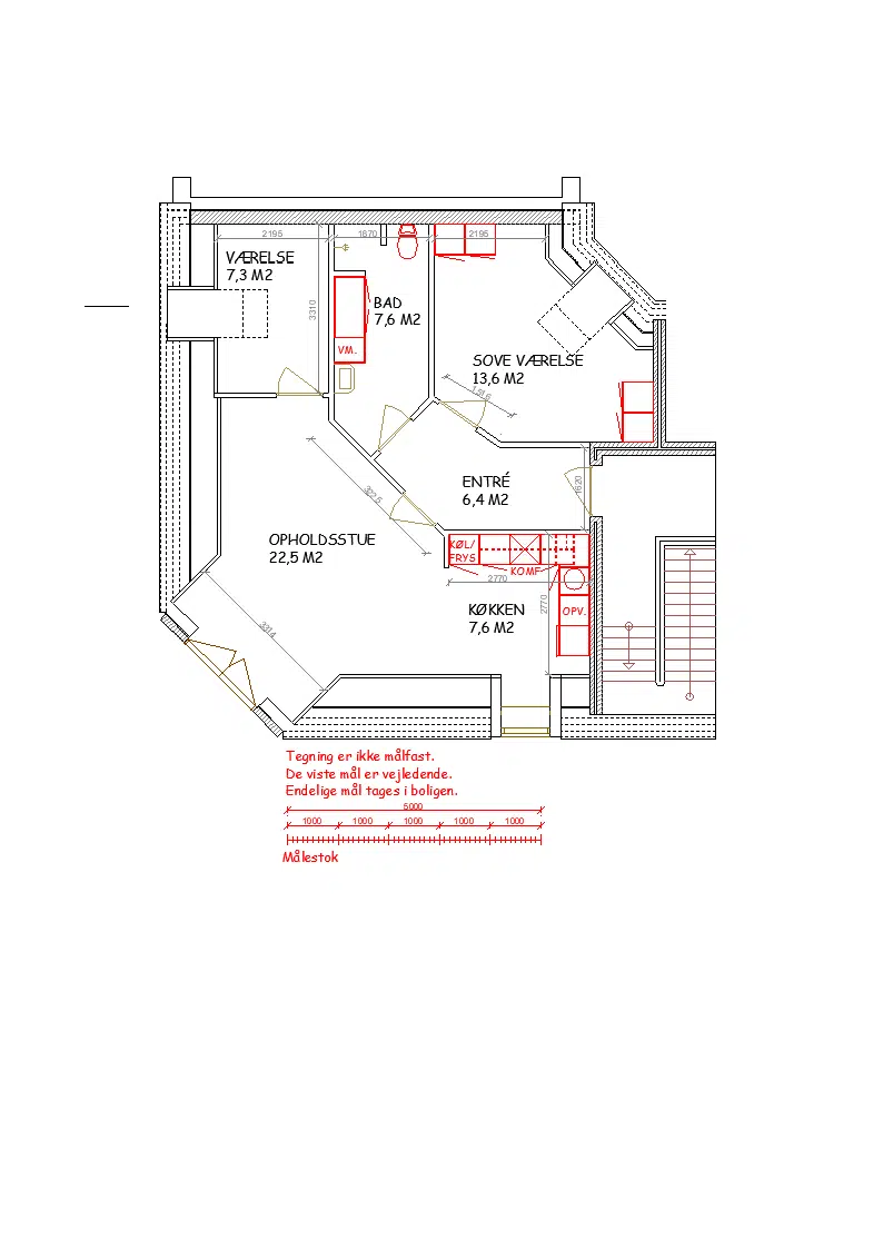
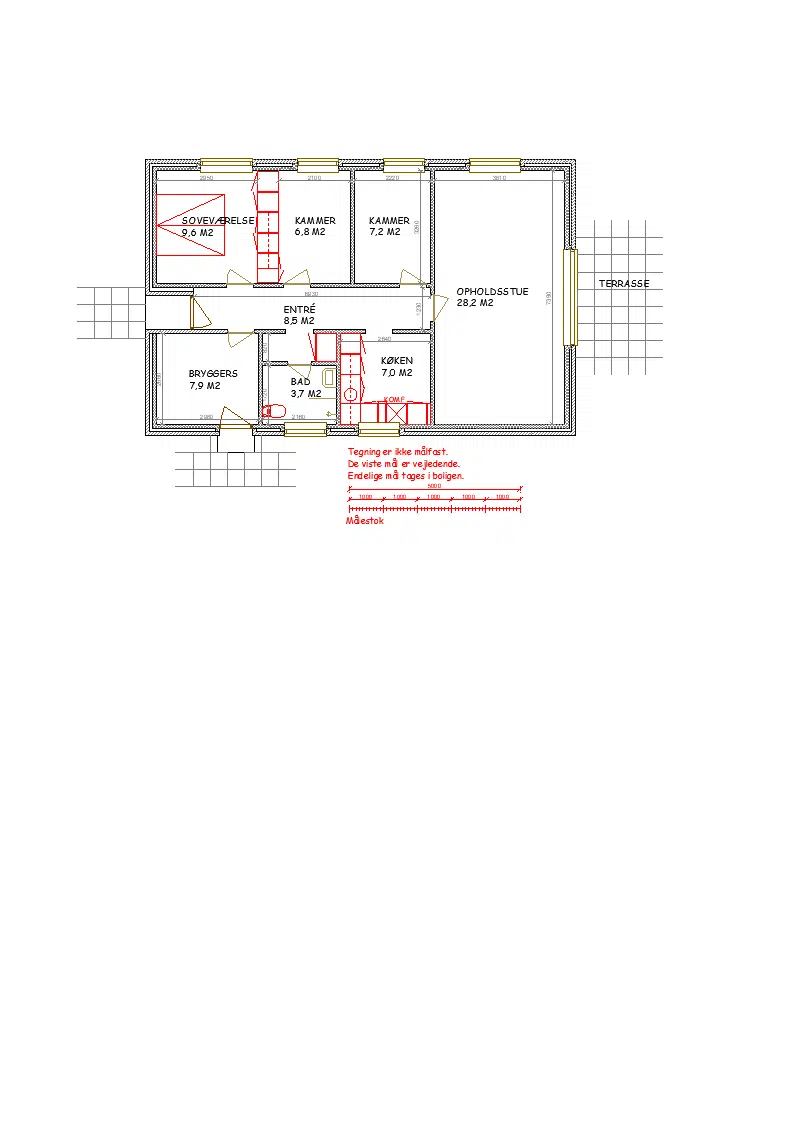
Almindelig bolig

3

90 m²

5900 kr.

15600 kr.

Almindelig bolig

3

89.97 m²

5653 kr.

16000 kr.

![](https://vardebolig.dk/i/MOLIRIMEDIA/17c9f051-9b50-4df0-425a-08dd8b99f0e0?width=800)

Almindelig bolig

3

100.09 m²

6009 kr.

16000 kr.

![](https://vardebolig.dk/i/MOLIRIMEDIA/56a1cec7-983e-44ef-4104-08dd8b99f0e0?width=800)

Almindelig bolig

3

93.02 m²

5760 kr.

16000 kr.

![](https://vardebolig.dk/i/MOLIRIMEDIA/6febbecd-35c0-4413-4113-08dd8b99f0e0?width=800)

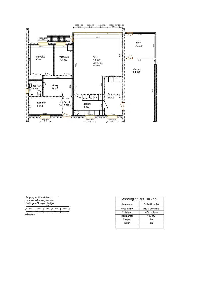
Almindelig bolig

3

110.2 m²

6366 kr.

16000 kr.

![](https://vardebolig.dk/i/MOLIRIMEDIA/39973ec7-caa4-499d-41ad-08dd8b99f0e0?width=800)

Almindelig bolig

3

101.11 m²

6045 kr.

16000 kr.

![](https://vardebolig.dk/i/MOLIRIMEDIA/0314a77a-a4c6-4d43-429d-08dd8b99f0e0?width=800)

Almindelig bolig

3

120.32 m²

6724 kr.

16000 kr.

![](https://vardebolig.dk/i/MOLIRIMEDIA/1bf0ab71-d7c0-49c5-42b0-08dd8b99f0e0?width=800)

Almindelig bolig

3

101.11 m²

6045 kr.

16000 kr.

![](https://vardebolig.dk/i/MOLIRIMEDIA/e754603b-5123-4cb2-4116-08dd8b99f0e0?width=800)

Almindelig bolig

3

120.32 m²

6724 kr.

16000 kr.

![](https://vardebolig.dk/i/MOLIRIMEDIA/4324e1e0-26e7-4a02-40e3-08dd8b99f0e0?width=800)

Almindelig bolig

3

86.2 m²

5064 kr.

18000 kr.

![](https://vardebolig.dk/i/MOLIRIMEDIA/2ecc8952-6a58-4521-41d3-08dd8b99f0e0?width=800)

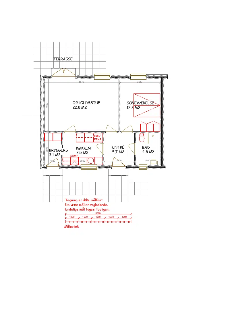
Almindelig bolig

3

69.5 m²

4083 kr.

17000 kr.

![](https://vardebolig.dk/i/MOLIRIMEDIA/eb28285a-7711-45f5-4273-08dd8b99f0e0?width=800)

Almindelig bolig

3

85.4 m²

5017 kr.

18000 kr.

![](https://vardebolig.dk/i/MOLIRIMEDIA/fa21d65b-c1e9-4740-4e6d-08dd8b99f0e0?width=800)

Almindelig bolig

3

88.9 m²

5223 kr.

18000 kr.

![](https://vardebolig.dk/i/MOLIRIMEDIA/32b2847b-7801-4873-4e9c-08dd8b99f0e0?width=800)

Almindelig bolig

3

84 m²

5720 kr.

14810 kr.

![](https://vardebolig.dk/i/MOLIRIMEDIA/26785de8-3880-4c20-4e58-08dd8b99f0e0?width=800)

Almindelig bolig

3

77 m²

5768 kr.

13576 kr.

![](https://vardebolig.dk/i/MOLIRIMEDIA/6d8acfcd-eb79-483a-4e9e-08dd8b99f0e0?width=800)

Almindelig bolig

3

98 m²

6346 kr.

15000 kr.

![](https://vardebolig.dk/i/MOLIRIMEDIA/6c4a8aec-6070-4f01-4e2d-08dd8b99f0e0?width=800)

Almindelig bolig

3

93 m²

6356 kr.

15000 kr.

![](https://vardebolig.dk/i/MOLIRIMEDIA/e3707e3f-5251-4699-4e24-08dd8b99f0e0?width=800)

Almindelig bolig

3

84 m²

6139 kr.

13249 kr.

![](https://vardebolig.dk/i/MOLIRIMEDIA/441781ca-4f90-4ae7-4e3e-08dd8b99f0e0?width=800)

Almindelig bolig

3

81 m²

5727 kr.

15000 kr.

Almindelig bolig

3

84 m²

5898 kr.

13249 kr.

![](https://vardebolig.dk/i/MOLIRIMEDIA/ff6c417f-50be-4765-4e78-08dd8b99f0e0?width=800)

Almindelig bolig

4

106 m²

5351 kr.

12000 kr.

![](https://vardebolig.dk/i/MOLIRIMEDIA/33179f89-719e-4ef3-4266-08dd8b99f0e0?width=800)

Almindelig bolig

4

88 m²

5340 kr.

12000 kr.

![](https://vardebolig.dk/i/MOLIRIMEDIA/6575e674-48b5-437b-4e91-08dd8b99f0e0?width=800)

Almindelig bolig

4

101 m²

4193 kr.

12000 kr.

![](https://vardebolig.dk/i/MOLIRIMEDIA/b231c047-826a-45a7-4e7b-08dd8b99f0e0?width=800)

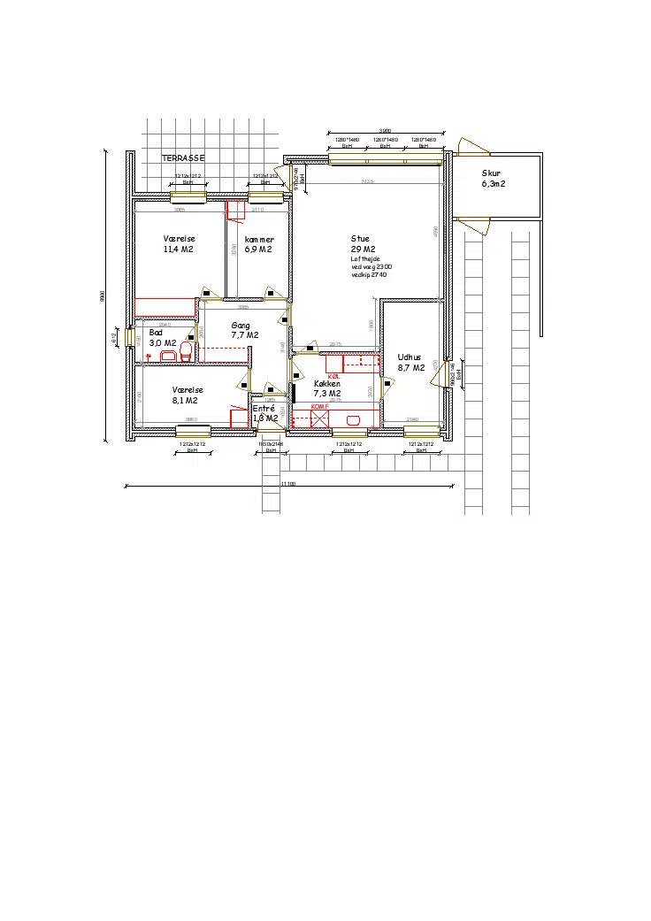
Almindelig bolig

4

105 m²

6291 kr.

17276 kr.

![](https://vardebolig.dk/i/MOLIRIMEDIA/9d03cfba-9594-4577-4165-08dd8b99f0e0?width=800)

Almindelig bolig

4

105.15 m²

6189 kr.

18000 kr.

![](https://vardebolig.dk/i/MOLIRIMEDIA/aa4fa886-09e5-4fc9-4265-08dd8b99f0e0?width=800)

Almindelig bolig

4

105.15 m²

6189 kr.

18000 kr.

![](https://vardebolig.dk/i/MOLIRIMEDIA/80aa006f-0fab-4167-40e9-08dd8b99f0e0?width=800)

Almindelig bolig

4

115.26 m²

6545 kr.

18000 kr.

![](https://vardebolig.dk/i/MOLIRIMEDIA/4795f48f-044f-4167-41d5-08dd8b99f0e0?width=800)

Almindelig bolig

4

105 m²

6726 kr.

12000 kr.

Almindelig bolig

4

103 m²

6051 kr.

19000 kr.

![](https://vardebolig.dk/i/MOLIRIMEDIA/8f35227d-5f81-4c29-4ea6-08dd8b99f0e0?width=800)

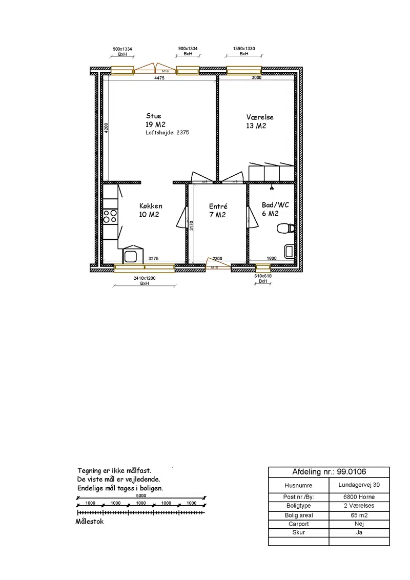
Ungdomsbolig

1

28 m²

1533 kr.

3645 kr.

Ungdomsbolig

1

28 m²

1533 kr.

2550 kr.

![](https://vardebolig.dk/i/MOLIRIMEDIA/9c4ec36f-cf73-4351-4298-08dd8b99f0e0?width=800)

## Afdelingens afstande til

Shopping

meter

Bus

meter

Togstation

meter

Bibliotek

meter

Skole

meter

Børnehave

meter

## Medlemmer af afdelingsbestyrelsen

Navn

Titel

Åge Gejl Hansen

Formand

Svend Erik Knudsen

Næstformand

Kathrine Elisabet Uhre

Bestyrelsesmedlem

Anne-Marie Øllgaard Rasmussen

Bestyrelsesmedlem

Pia Ager Sørensen

Bestyrelsesmedlem

Bente Poulsen

Suppleant

## Afdelingsdokumenter

Her finder du nyttig information om din afdeling, såsom husorden, vedligeholdelse af dit lejemål, referater m.m.

###

                                                Referater

[0106, Referat afdelingsmøde 15.08.24, underskrevet.pdf](https://vardebolig.dk/p/Files/Boligdata/Dokumenter/99-106/Referater/0106--Referat-afdelingsm&#xF8;de-15.08.24--underskrevet.pdf)
                                            [0106, Referat afdelingsmøde 2021 - underskrevet.pdf](https://vardebolig.dk/p/Files/Boligdata/Dokumenter/99-106/Referater/0106--Referat-afdelingsm&#xF8;de-2021---underskrevet.pdf)
                                            [0106, referat afdelingsmøde 2022, underskrevet.pdf](https://vardebolig.dk/p/Files/Boligdata/Dokumenter/99-106/Referater/0106--referat-afdelingsm&#xF8;de-2022--underskrevet.pdf)
                                            [0106, Referat afdelingsmøde 2023 underskrevet.pdf](https://vardebolig.dk/p/Files/Boligdata/Dokumenter/99-106/Referater/0106--Referat-afdelingsm&#xF8;de-2023-underskrevet.pdf)
                                            [0106, Referat afdelingsmøde 28.08.25, underskrevet.pdf](https://vardebolig.dk/p/Files/Boligdata/Dokumenter/99-106/Referater/0106--Referat-afdelingsm&#xF8;de-28.08.25--underskrevet.pdf)
                                            [0106, Referat ekstraordinært afdelingsmøde 19.05.25.pdf](https://vardebolig.dk/p/Files/Boligdata/Dokumenter/99-106/Referater/0106--Referat-ekstraordin&#xE6;rt-afdelingsm&#xF8;de-19.05.25.pdf)
                                            [0106 referat afdelingsmøde underskrevet 2020.pdf](https://vardebolig.dk/p/Files/Boligdata/Dokumenter/99-106/Referater/0106-referat-afdelingsm&#xF8;de-underskrevet-2020.pdf)
                                            [Afd. 0106, referat afdelingsmøde 2022, underskrevet.pdf](https://vardebolig.dk/p/Files/Boligdata/Dokumenter/99-106/Referater/Afd.-0106--referat-afdelingsm&#xF8;de-2022--underskrevet.pdf)

###

                                                Dagsordner

[Afd. 0106, dagsorden 2020.pdf](https://vardebolig.dk/p/Files/Boligdata/Dokumenter/99-106/Dagsordner/Afd.-0106--dagsorden-2020.pdf)
                                            [Afd. 0106, dagsorden 2021.pdf](https://vardebolig.dk/p/Files/Boligdata/Dokumenter/99-106/Dagsordner/Afd.-0106--dagsorden-2021.pdf)
                                            [Afd. 0106, dagsorden 2022.pdf](https://vardebolig.dk/p/Files/Boligdata/Dokumenter/99-106/Dagsordner/Afd.-0106--dagsorden-2022.pdf)
                                            [Afd. 0106, dagsorden 2023.pdf](https://vardebolig.dk/p/Files/Boligdata/Dokumenter/99-106/Dagsordner/Afd.-0106--dagsorden-2023.pdf)
                                            [Afd. 0106, dagsorden 2024, forslag.pdf](https://vardebolig.dk/p/Files/Boligdata/Dokumenter/99-106/Dagsordner/Afd.-0106--dagsorden-2024--forslag.pdf)
                                            [Afd. 0106, dagsorden 2024.pdf](https://vardebolig.dk/p/Files/Boligdata/Dokumenter/99-106/Dagsordner/Afd.-0106--dagsorden-2024.pdf)
                                            [Afd. 0106, dagsorden 2025.pdf](https://vardebolig.dk/p/Files/Boligdata/Dokumenter/99-106/Dagsordner/Afd.-0106--dagsorden-2025.pdf)

###

                                                Dokumenter

[0106, 2020, Vedligeholdelsesreglement, VBA, underskrevet.pdf](https://vardebolig.dk/p/Files/Boligdata/Dokumenter/99-106/Dokumenter/0106--2020--Vedligeholdelsesreglement--VBA--underskrevet.pdf)
                                            [Afd. 0106, Husorden 2023.pdf](https://vardebolig.dk/p/Files/Boligdata/Dokumenter/99-106/Dokumenter/Afd.-0106--Husorden-2023.pdf)
                                            [Afd. 0106, Råderetskatalog 2023.pdf](https://vardebolig.dk/p/Files/Boligdata/Dokumenter/99-106/Dokumenter/Afd.-0106--R&#xE5;deretskatalog-2023.pdf)

###

                                                Referater afdelingsbestyrelse

[Referat afdelingsbestyrelsesmøde afd 106,  26.11.2025.pdf](https://vardebolig.dk/p/Files/Boligdata/Dokumenter/99-106/Referater%20afdelingsbestyrelse/Referat-afdelingsbestyrelsesm&#xF8;de-afd-106---26.11.2025.pdf)
