---
title: "99-Afdeling 0163"
description: "99-163"
date: "2025-09-29"
created: "2025-03-18"
---

## Velkommen til Afdeling 0163

Boligerne (tæt/lav) er beliggende på Kirkebakken 11 A-F & 15 A-D i Jernvedlund ved Gredstedbro. Der er carport tilknyttet boligerne. Boligerne er taget i brug i 1980.

## Fakta for afdelingen...

El eksl. i leje

Ja

Husdyr

Ja

Dyr ok - men ansøgning om husdyrhold skal fremsendes.

Have

Ja

## Antal boliger i afdelingen

Almindelig bolig

2 værelses

Almindelig bolig

Boligtype

Værelser

Størrelse

Husleje

Indskud/dp

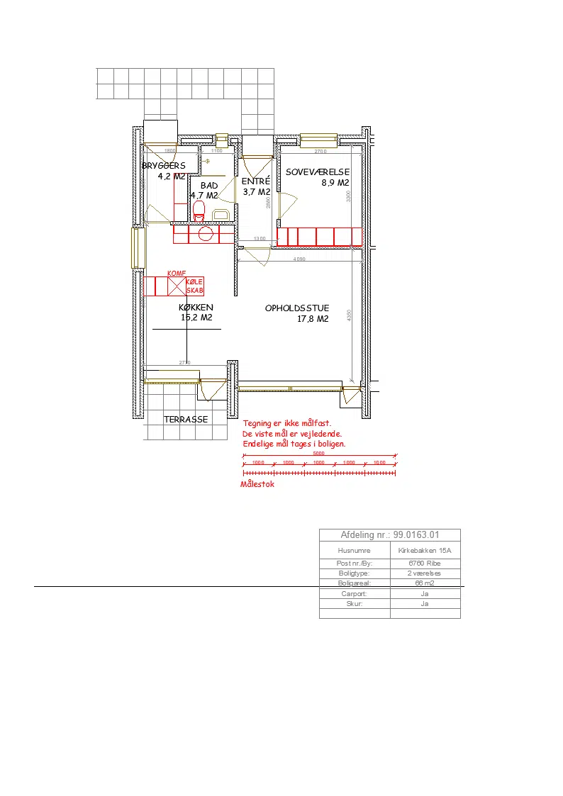
Plantegning

Almindelig bolig

2

66 m²

4443 kr.

9000 kr.

![](https://vardebolig.dk/i/MOLIRIMEDIA/3fd5e328-bc13-4c1a-40f1-08dd8b99f0e0?width=800)

## Afdelingens afstande til

Shopping

meter

Bus

meter

Togstation

meter

Bibliotek

meter

Skole

meter

Børnehave

meter

## Medlemmer af afdelingsbestyrelsen

Navn

Titel

Brian Lønne

Formand

Torben Lauritsen

Næstformand

Mads Paarup

Bestyrelsesmedlem

Rene Jensen

Suppleant

## Afdelingsdokumenter

Her finder du nyttig information om din afdeling, såsom husorden, vedligeholdelse af dit lejemål, referater m.m.

###

                                                Referater

[0107, 0109, 0124, 0127 og 0163, Referat afdelingsmøde 04.09.25, underskrevet.pdf](https://vardebolig.dk/p/Files/Boligdata/Dokumenter/99-163/Referater/0107--0109--0124--0127-og-0163--Referat-afdelingsm&#xF8;de-04.09.25--underskrevet.pdf)
                                            [0107, 0109, 0124, 0127 og 0163, Referat afdelingsmøde 27.08.24, underskrevet.pdf](https://vardebolig.dk/p/Files/Boligdata/Dokumenter/99-163/Referater/0107--0109--0124--0127-og-0163--Referat-afdelingsm&#xF8;de-27.08.24--underskrevet.pdf)
                                            [0107, 0109, 0124, 0127 og 0163 referat afdelingsmøde underskrevet 2020.pdf](https://vardebolig.dk/p/Files/Boligdata/Dokumenter/99-163/Referater/0107--0109--0124--0127-og-0163-referat-afdelingsm&#xF8;de-underskrevet-2020.pdf)
                                            [0107,0109,0124,0127,0163, 2022 underskrevet.pdf](https://vardebolig.dk/p/Files/Boligdata/Dokumenter/99-163/Referater/0107-0109-0124-0127-0163--2022-underskrevet.pdf)
                                            [0107,0109,0124,0127,0163, 2023 underskrevet.pdf](https://vardebolig.dk/p/Files/Boligdata/Dokumenter/99-163/Referater/0107-0109-0124-0127-0163--2023-underskrevet.pdf)
                                            [0107,0109,0124,0127,0163, referat 2021 underskrevet.pdf](https://vardebolig.dk/p/Files/Boligdata/Dokumenter/99-163/Referater/0107-0109-0124-0127-0163--referat-2021-underskrevet.pdf)

###

                                                Dagsordner

[Afd. 0107,0109,0124,0127,0163, dagsorden 2020.pdf](https://vardebolig.dk/p/Files/Boligdata/Dokumenter/99-163/Dagsordner/Afd.-0107-0109-0124-0127-0163--dagsorden-2020.pdf)
                                            [Afd. 0107,0109,0124,0127,0163, dagsorden 2021, med forslag.pdf](https://vardebolig.dk/p/Files/Boligdata/Dokumenter/99-163/Dagsordner/Afd.-0107-0109-0124-0127-0163--dagsorden-2021--med-forslag.pdf)
                                            [Afd. 0107,0109,0124,0127,0163, dagsorden 2021, rettelse afd. 0124.pdf](https://vardebolig.dk/p/Files/Boligdata/Dokumenter/99-163/Dagsordner/Afd.-0107-0109-0124-0127-0163--dagsorden-2021--rettelse-afd.-0124.pdf)
                                            [Afd. 0107,0109,0124,0127,0163, dagsorden 2021.pdf](https://vardebolig.dk/p/Files/Boligdata/Dokumenter/99-163/Dagsordner/Afd.-0107-0109-0124-0127-0163--dagsorden-2021.pdf)
                                            [Afd. 0107,0109,0124,0127,0163, dagsorden 2022.pdf](https://vardebolig.dk/p/Files/Boligdata/Dokumenter/99-163/Dagsordner/Afd.-0107-0109-0124-0127-0163--dagsorden-2022.pdf)
                                            [Afd. 0107,0109,0124,0127,0163, dagsorden 2023.pdf](https://vardebolig.dk/p/Files/Boligdata/Dokumenter/99-163/Dagsordner/Afd.-0107-0109-0124-0127-0163--dagsorden-2023.pdf)
                                            [Afd. 0107+0109+0124+0127+0163, dagsorden 2024.pdf](https://vardebolig.dk/p/Files/Boligdata/Dokumenter/99-163/Dagsordner/Afd.-0107-0109-0124-0127-0163--dagsorden-2024.pdf)
                                            [Afd. 0107+0109+0124+0127+0163, dagsorden 2025, forslag.pdf](https://vardebolig.dk/p/Files/Boligdata/Dokumenter/99-163/Dagsordner/Afd.-0107-0109-0124-0127-0163--dagsorden-2025--forslag.pdf)
                                            [Afd. 0107+0109+0124+0127+0163, dagsorden 2025.pdf](https://vardebolig.dk/p/Files/Boligdata/Dokumenter/99-163/Dagsordner/Afd.-0107-0109-0124-0127-0163--dagsorden-2025.pdf)

###

                                                Dokumenter

[0163, 2020, Vedligeholdelsesreglement, VBA, underskrevet.pdf](https://vardebolig.dk/p/Files/Boligdata/Dokumenter/99-163/Dokumenter/0163--2020--Vedligeholdelsesreglement--VBA--underskrevet.pdf)
                                            [Afd. 0163, Husorden 2023.pdf](https://vardebolig.dk/p/Files/Boligdata/Dokumenter/99-163/Dokumenter/Afd.-0163--Husorden-2023.pdf)
                                            [Afd. 0163, Råderetskatalog 2023.pdf](https://vardebolig.dk/p/Files/Boligdata/Dokumenter/99-163/Dokumenter/Afd.-0163--R&#xE5;deretskatalog-2023.pdf)
