---
title: "99-Afdeling 0406"
description: "99-406"
date: "2025-09-29"
created: "2025-03-18"
---

-
-
-
-
-
-
-
-
-
-
-
-
-
-

https://maps.google.dk/?q=55.6239386,8.4816107

# Afdeling 0406

## Velkommen til Afdeling 0406

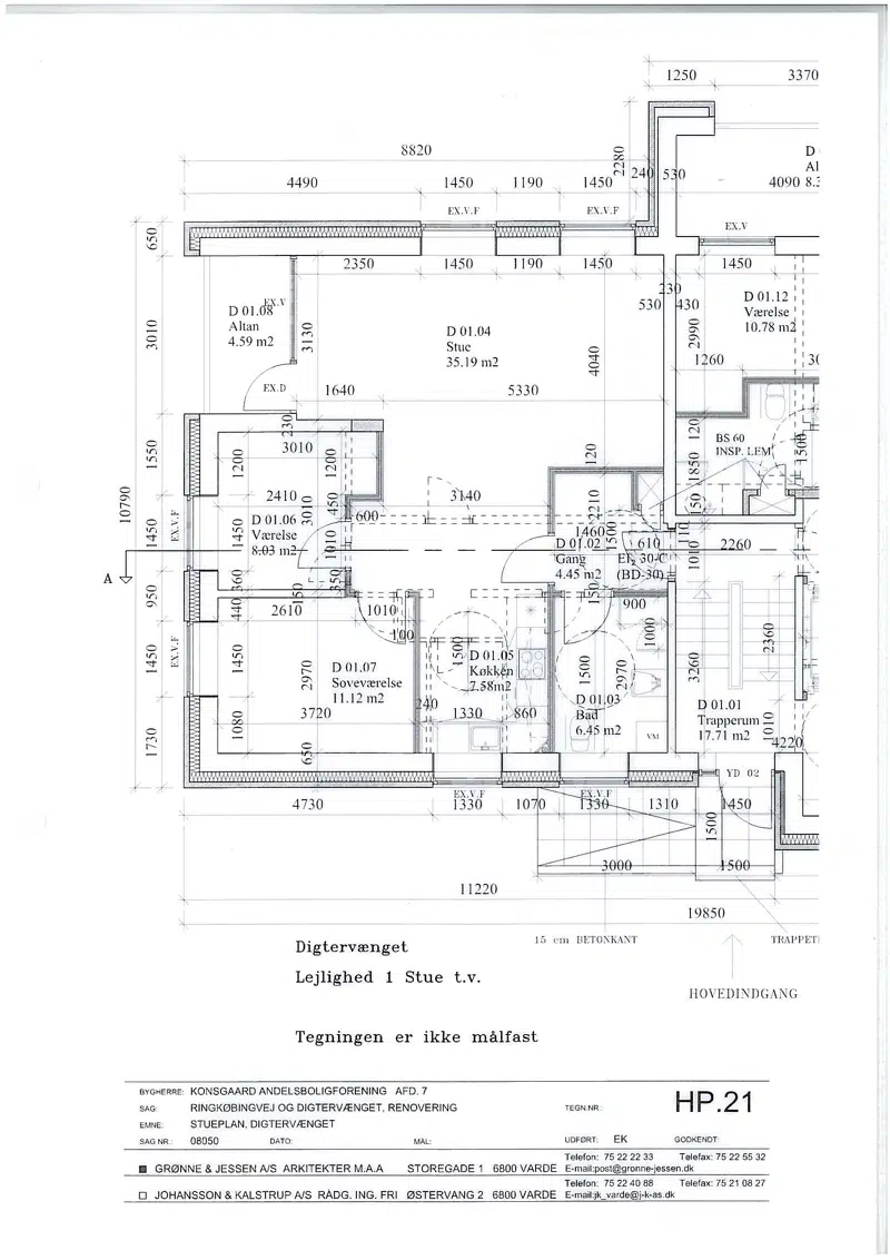
Lejlighederne er beliggende på Ringkøbingvej 33/Digtervænget 2 i centrum af Varde by.
Lejlighederne ligger i en etageejendom, med stue, 1. sal og 2. sal.
Der er ingen have. I kælderen er der fællesvaskeri.
Lejlighederne har gennemgået en større renovering i 2009 og 2010.
Alle lejligheder er med nye køkkener og badeværelser.
Lejlighederne blev taget i brug i 1963.
Der er mulighed for at leje garage i afdelingen.
-
Lejlighederne er beliggende på Ringkøbingvej 4-10 i centrum af Varde by. Lejlighederne ligger i etageejendom, med stue, 1. sal, 2. sal og 3. sal.
Der er ingen have, men grønne arealer. Lejlighederne i stuen har tilknyttet terrasse, med direkte udgang. De andre boliger har en stor altan.
Lejlighederne er gennemrenoveret i 2018 og står helt nye med køkkener, badeværelser, installationer og gulve.
Lejlighederne blev første gang taget i brug i 1953.
Der er mulighed for at leje garage i afdelingen.
-
Lejlighederne er beliggende i Østergade 21/Lundgade 16 i centrum af Varde.
Lejlighederne er beliggende i stue og 1-sal. Der er fællesvaskeri i kælderen.
Lejlighederne blev taget i brug 1996
-
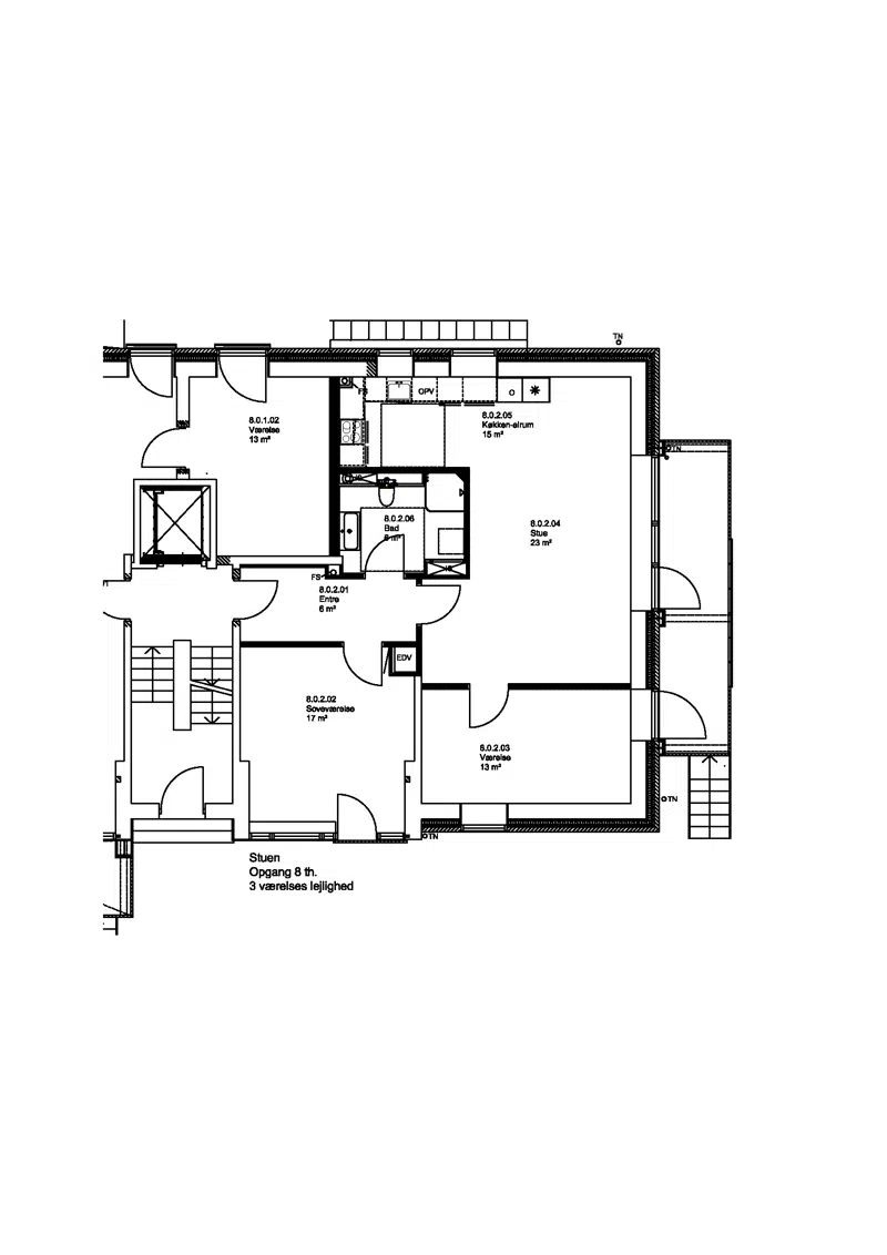
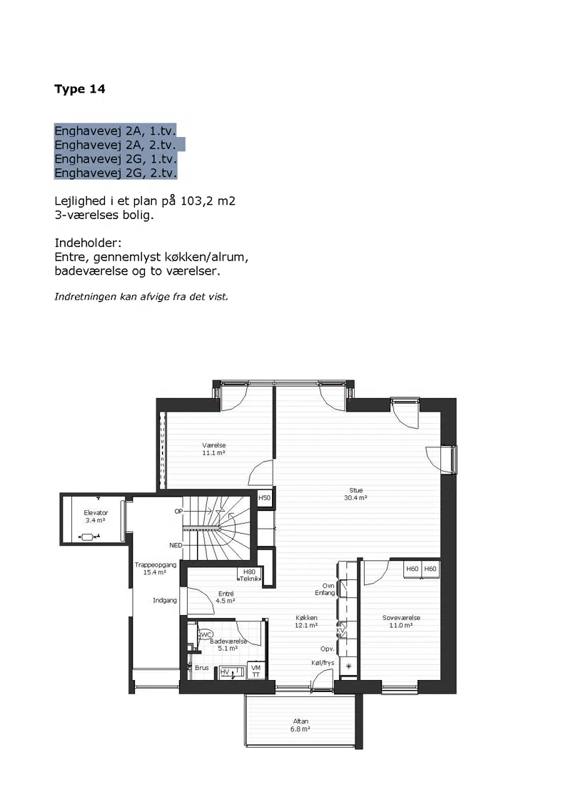
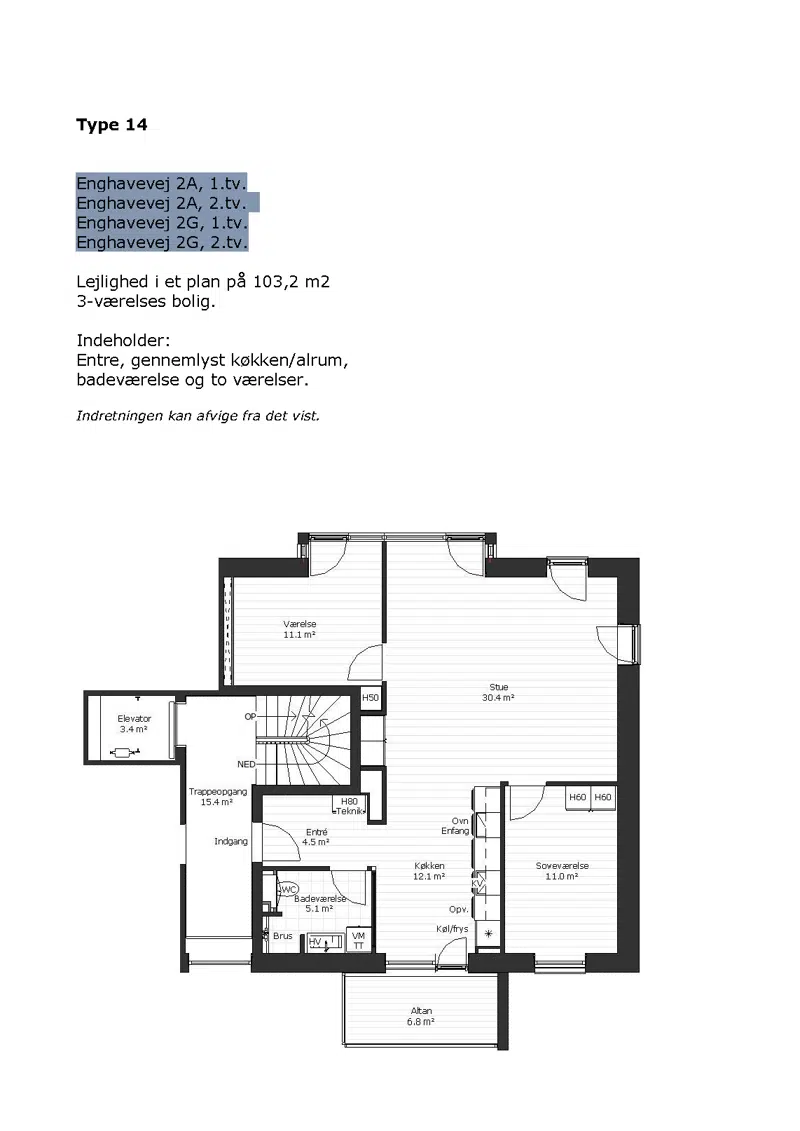
Lejlighederne er beliggende på Enghavevej 2 A-G i centrum af Varde by.
Lejlighederne ligger i en etageejendom, med stue, 1. sal, 2-sal og 3-sal. Der er ingen have, men terrasse til boligerne i stuen og altaner til 1.-3. sal., derudover er der parkering i gården. Der er elevator i flere af opgangene.
Lejlighederne blev taget i brug i 01.11.2019.
-
Lejlighederne er beliggende i Storegade 44 + 46 centrum af Varde by.
Lejlighederne ligger i en etageejendom, med stue og 1. sal.	Der er ingen have. Men udearelaer og parkering i gården.
Lejlighederne blev taget i brug i 01.09.2018.

## Fakta for afdelingen...

Fjernvarme

Ja

El eksl. i leje

Ja

Husdyr

Ja

Husdyr tilladt - én hund eller én kat

Altan

Ja

## Antal boliger i afdelingen

Almindelig bolig

1 værelses

Almindelig bolig

Almindelig bolig

2 værelses

Almindelig bolig

Almindelig bolig

3 værelses

Almindelig bolig

Almindelig bolig

4 værelses

Almindelig bolig

Boligtype

Værelser

Størrelse

Husleje

Indskud/dp

Plantegning

Almindelig bolig

1

42.9 m²

3048 kr.

10000 kr.

![](https://vardebolig.dk/i/MOLIRIMEDIA/f4b8fd12-a6b2-431a-e595-08dd6148a5be?width=800)

Almindelig bolig

1

34 m²

2463 kr.

6900 kr.

![](https://vardebolig.dk/i/MOLIRIMEDIA/179c5b01-7623-48c9-e5b6-08dd6148a5be?width=800)

Almindelig bolig

1

43 m²

3086 kr.

8700 kr.

![](https://vardebolig.dk/i/MOLIRIMEDIA/b8522e2e-a26f-4f98-e57c-08dd6148a5be?width=800)

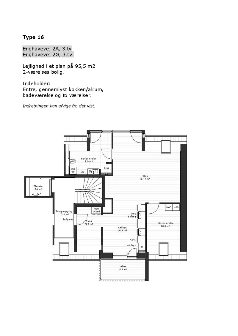
Almindelig bolig

2

95.5 m²

7666 kr.

37990 kr.

![](https://vardebolig.dk/i/MOLIRIMEDIA/8b3ba484-66b3-4b8a-41b9-08dd8b99f0e0?width=800)

Almindelig bolig

2

96.9 m²

7733 kr.

38548 kr.

![](https://vardebolig.dk/i/MOLIRIMEDIA/58c39244-e4ab-41e3-41a1-08dd8b99f0e0?width=800)

Almindelig bolig

2

95.5 m²

7656 kr.

37910 kr.

![](https://vardebolig.dk/i/MOLIRIMEDIA/13dbab56-b3ed-40e9-41a7-08dd8b99f0e0?width=800)

Almindelig bolig

2

96.9 m²

7722 kr.

38467 kr.

![](https://vardebolig.dk/i/MOLIRIMEDIA/aa653927-6b56-45ea-41c6-08dd8b99f0e0?width=800)

Almindelig bolig

2

50.9 m²

3389 kr.

10000 kr.

![](https://vardebolig.dk/i/MOLIRIMEDIA/fdab2631-fdcf-4607-e4bc-08dd6148a5be?width=800)

Almindelig bolig

2

84.9 m²

4835 kr.

10000 kr.

![](https://vardebolig.dk/i/MOLIRIMEDIA/35a95cd4-1298-461e-e522-08dd6148a5be?width=800)

Almindelig bolig

2

84.9 m²

4785 kr.

10000 kr.

![](https://vardebolig.dk/i/MOLIRIMEDIA/5355320c-78d1-448a-e70e-08dd6148a5be?width=800)

Almindelig bolig

2

70.9 m²

4249 kr.

10000 kr.

![](https://vardebolig.dk/i/MOLIRIMEDIA/f467086d-cf55-4bc0-e6bd-08dd6148a5be?width=800)

Almindelig bolig

2

54 m²

3849 kr.

10925 kr.

![](https://vardebolig.dk/i/MOLIRIMEDIA/f89bdd44-e0ab-4258-e709-08dd6148a5be?width=800)

Almindelig bolig

2

68 m²

4810 kr.

13750 kr.

![](https://vardebolig.dk/i/MOLIRIMEDIA/787ba36a-e092-4ae8-e569-08dd6148a5be?width=800)

Almindelig bolig

2

59 m²

4193 kr.

11925 kr.

![](https://vardebolig.dk/i/MOLIRIMEDIA/8a0f84b6-27e5-48e6-e6d1-08dd6148a5be?width=800)

Almindelig bolig

2

73.4 m²

5225 kr.

15000 kr.

![](https://vardebolig.dk/i/MOLIRIMEDIA/4f78d196-9c74-483c-40d0-08dd8b99f0e0?width=800)

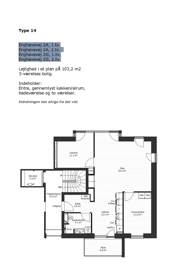
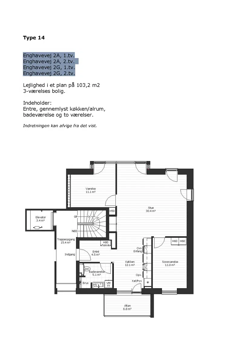
Almindelig bolig

3

103.2 m²

8027 kr.

41053 kr.

![](https://vardebolig.dk/i/MOLIRIMEDIA/95d12003-1f4d-48d8-4179-08dd8b99f0e0?width=800)

Almindelig bolig

3

104.5 m²

8089 kr.

41570 kr.

![](https://vardebolig.dk/i/MOLIRIMEDIA/ce7b0d8d-a97d-4cce-4135-08dd8b99f0e0?width=800)

Almindelig bolig

3

103.2 m²

8027 kr.

41053 kr.

![](https://vardebolig.dk/i/MOLIRIMEDIA/f96cef04-cde2-444f-4123-08dd8b99f0e0?width=800)

Almindelig bolig

3

104.5 m²

8089 kr.

41570 kr.

![](https://vardebolig.dk/i/MOLIRIMEDIA/74c80f9e-9989-4aa5-41ec-08dd8b99f0e0?width=800)

Almindelig bolig

3

102.1 m²

7977 kr.

40615 kr.

![](https://vardebolig.dk/i/MOLIRIMEDIA/0e927983-8a8c-4e34-4155-08dd8b99f0e0?width=800)

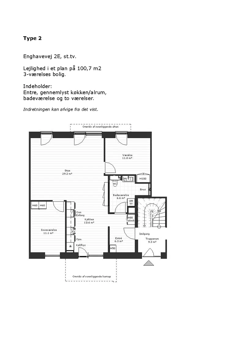
Almindelig bolig

3

100.7 m²

7911 kr.

40058 kr.

![](https://vardebolig.dk/i/MOLIRIMEDIA/9e384ada-0237-4cbc-41af-08dd8b99f0e0?width=800)

Almindelig bolig

3

102.6 m²

8000 kr.

40814 kr.

![](https://vardebolig.dk/i/MOLIRIMEDIA/93cdc4a7-cbf6-4b84-40ec-08dd8b99f0e0?width=800)

Almindelig bolig

3

105.1 m²

8119 kr.

41809 kr.

![](https://vardebolig.dk/i/MOLIRIMEDIA/82cb6b76-2947-4c08-4272-08dd8b99f0e0?width=800)

Almindelig bolig

3

101.9 m²

7966 kr.

40536 kr.

![](https://vardebolig.dk/i/MOLIRIMEDIA/f852b353-34f4-4367-40ce-08dd8b99f0e0?width=800)

Almindelig bolig

3

105.1 m²

8119 kr.

41809 kr.

![](https://vardebolig.dk/i/MOLIRIMEDIA/763df446-c146-4a2f-428b-08dd8b99f0e0?width=800)

Almindelig bolig

3

102.6 m²

8000 kr.

40814 kr.

![](https://vardebolig.dk/i/MOLIRIMEDIA/c277705b-2ccf-45c9-4157-08dd8b99f0e0?width=800)

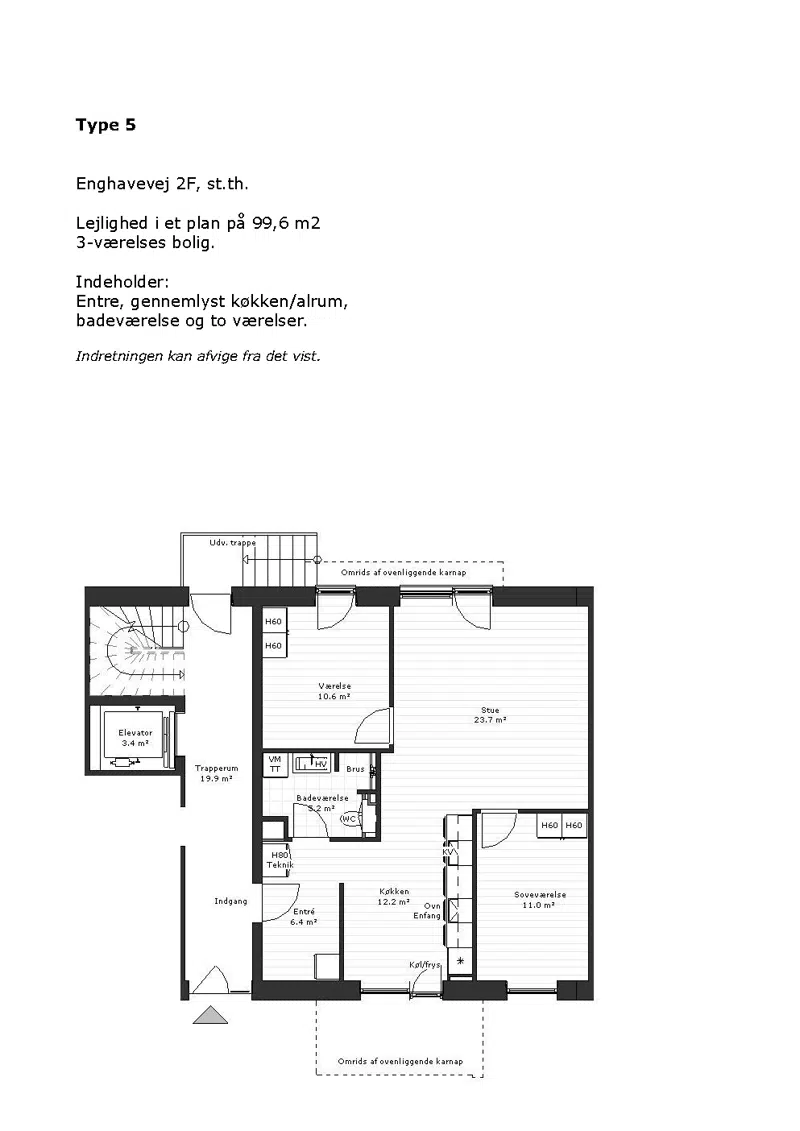
Almindelig bolig

3

99.6 m²

7859 kr.

39621 kr.

![](https://vardebolig.dk/i/MOLIRIMEDIA/060daf54-6211-4177-41d9-08dd8b99f0e0?width=800)

Almindelig bolig

3

103.6 m²

8048 kr.

41212 kr.

![](https://vardebolig.dk/i/MOLIRIMEDIA/e8c2a862-3639-43bb-4166-08dd8b99f0e0?width=800)

Almindelig bolig

3

103 m²

8019 kr.

40973 kr.

![](https://vardebolig.dk/i/MOLIRIMEDIA/efdab5ac-24bb-40fc-4100-08dd8b99f0e0?width=800)

Almindelig bolig

3

100.7 m²

7911 kr.

40058 kr.

![](https://vardebolig.dk/i/MOLIRIMEDIA/14aa4ce9-8531-4385-409e-08dd8b99f0e0?width=800)

Almindelig bolig

3

101.4 m²

7944 kr.

40337 kr.

![](https://vardebolig.dk/i/MOLIRIMEDIA/70edf3ef-1895-40a6-4199-08dd8b99f0e0?width=800)

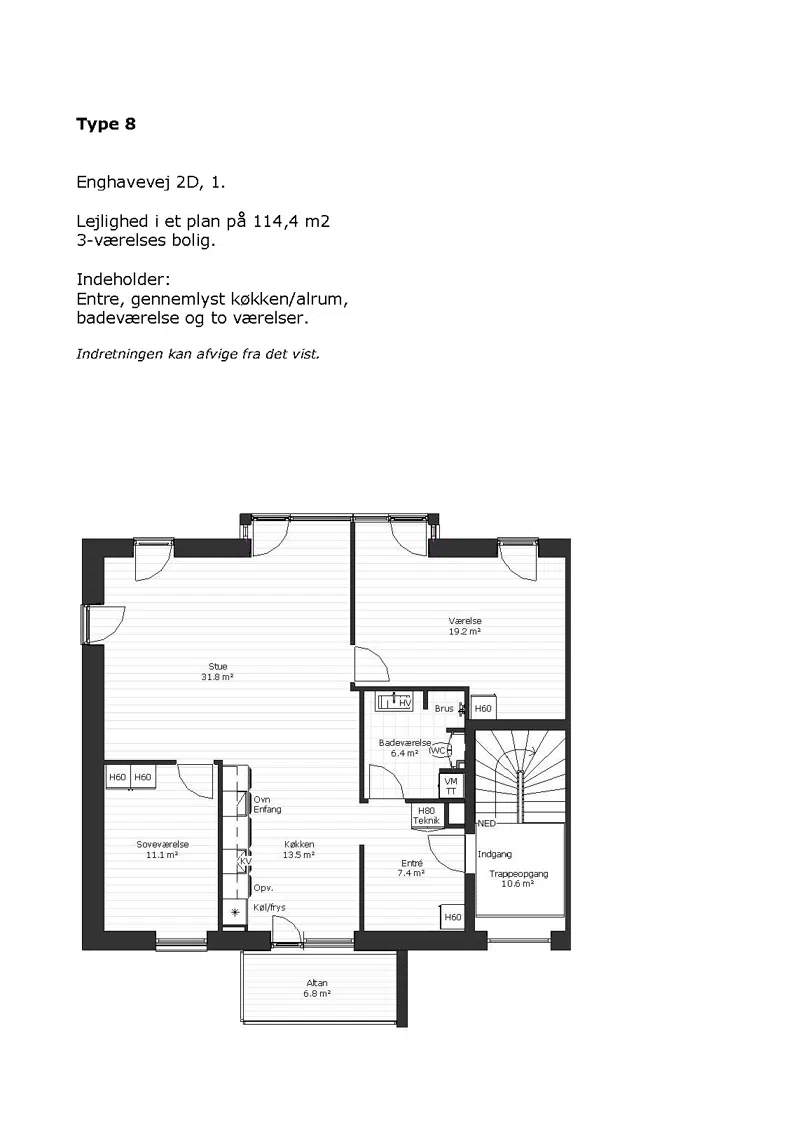
Almindelig bolig

3

114.4 m²

8554 kr.

45508 kr.

![](https://vardebolig.dk/i/MOLIRIMEDIA/db7a25fb-7ba6-4a69-40e7-08dd8b99f0e0?width=800)

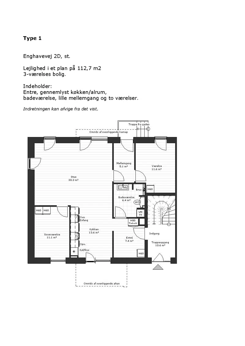
Almindelig bolig

3

112.7 m²

8475 kr.

44832 kr.

![](https://vardebolig.dk/i/MOLIRIMEDIA/f4e8b5d5-6f78-4ecc-417f-08dd8b99f0e0?width=800)

Almindelig bolig

3

101.9 m²

7966 kr.

40536 kr.

![](https://vardebolig.dk/i/MOLIRIMEDIA/b9e3259c-55dc-4856-42a6-08dd8b99f0e0?width=800)

Almindelig bolig

3

99 m²

7830 kr.

39382 kr.

![](https://vardebolig.dk/i/MOLIRIMEDIA/85a13c34-2589-4e22-4294-08dd8b99f0e0?width=800)

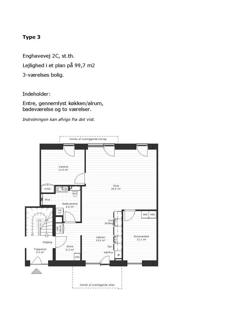
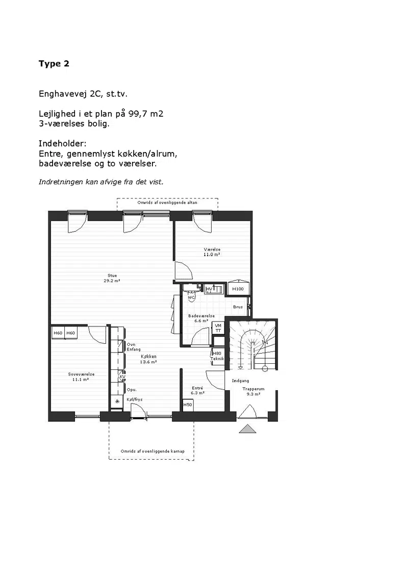
Almindelig bolig

3

99.7 m²

7864 kr.

39661 kr.

![](https://vardebolig.dk/i/MOLIRIMEDIA/3120cc66-e7d0-4841-429f-08dd8b99f0e0?width=800)

Almindelig bolig

3

99.7 m²

7864 kr.

39661 kr.

![](https://vardebolig.dk/i/MOLIRIMEDIA/28ab931d-ea09-4267-41ac-08dd8b99f0e0?width=800)

Almindelig bolig

3

105 m²

7812 kr.

41849 kr.

![](https://vardebolig.dk/i/MOLIRIMEDIA/2a10e9e8-be15-4b48-4277-08dd8b99f0e0?width=800)

Almindelig bolig

3

99 m²

7812 kr.

39223 kr.

![](https://vardebolig.dk/i/MOLIRIMEDIA/001c8a17-dea8-4fc6-419d-08dd8b99f0e0?width=800)

Almindelig bolig

3

98.4 m²

7804 kr.

39144 kr.

![](https://vardebolig.dk/i/MOLIRIMEDIA/06eda0c3-08b4-4681-4270-08dd8b99f0e0?width=800)

Almindelig bolig

3

101 m²

7925 kr.

40178 kr.

![](https://vardebolig.dk/i/MOLIRIMEDIA/65d73426-f163-420c-416d-08dd8b99f0e0?width=800)

Almindelig bolig

3

98.6 m²

7812 kr.

39223 kr.

![](https://vardebolig.dk/i/MOLIRIMEDIA/358eedec-4f1b-4a8f-4158-08dd8b99f0e0?width=800)

Almindelig bolig

3

96.5 m²

7714 kr.

38388 kr.

![](https://vardebolig.dk/i/MOLIRIMEDIA/538a8ffb-b82d-4533-421b-08dd8b99f0e0?width=800)

Almindelig bolig

3

103.2 m²

8027 kr.

41053 kr.

![](https://vardebolig.dk/i/MOLIRIMEDIA/8fab257c-d87f-4aef-4146-08dd8b99f0e0?width=800)

Almindelig bolig

3

100.5 m²

7900 kr.

39979 kr.

![](https://vardebolig.dk/i/MOLIRIMEDIA/dc9b35a7-cddb-4be6-4190-08dd8b99f0e0?width=800)

Almindelig bolig

3

103.2 m²

8027 kr.

41053 kr.

![](https://vardebolig.dk/i/MOLIRIMEDIA/12991804-ab2a-435c-427a-08dd8b99f0e0?width=800)

Almindelig bolig

3

100.5 m²

7900 kr.

39979 kr.

![](https://vardebolig.dk/i/MOLIRIMEDIA/fef54b65-24d1-4a98-4164-08dd8b99f0e0?width=800)

Almindelig bolig

3

98 m²

7784 kr.

38984 kr.

![](https://vardebolig.dk/i/MOLIRIMEDIA/a2254034-f0ec-4b38-4207-08dd8b99f0e0?width=800)

Almindelig bolig

3

100.7 m²

7911 kr.

40058 kr.

![](https://vardebolig.dk/i/MOLIRIMEDIA/641c3f14-9bcf-4920-4289-08dd8b99f0e0?width=800)

Almindelig bolig

3

95 m²

7380 kr.

35649 kr.

![](https://vardebolig.dk/i/MOLIRIMEDIA/ac0f0249-2e59-40af-40e6-08dd8b99f0e0?width=800)

Almindelig bolig

3

89 m²

7380 kr.

35649 kr.

![](https://vardebolig.dk/i/MOLIRIMEDIA/bed0a503-1ffe-4d03-428f-08dd8b99f0e0?width=800)

Almindelig bolig

3

96.5 m²

5364 kr.

15000 kr.

![](https://vardebolig.dk/i/MOLIRIMEDIA/0611c0fd-593b-4fe9-e68a-08dd6148a5be?width=800)

Almindelig bolig

3

83 m²

5851 kr.

16775 kr.

![](https://vardebolig.dk/i/MOLIRIMEDIA/09ee02dd-02ab-4a04-e6f8-08dd6148a5be?width=800)

Almindelig bolig

3

105 m²

6466 kr.

20000 kr.

![](https://vardebolig.dk/i/MOLIRIMEDIA/52661016-4963-422c-4217-08dd8b99f0e0?width=800)

Almindelig bolig

3

86.2 m²

5728 kr.

20000 kr.

![](https://vardebolig.dk/i/MOLIRIMEDIA/5f962ac6-7bb9-4d58-42ca-08dd8b99f0e0?width=800)

Almindelig bolig

3

92 m²

5955 kr.

20000 kr.

![](https://vardebolig.dk/i/MOLIRIMEDIA/9e64c3dd-fdf9-40fb-428e-08dd8b99f0e0?width=800)

Almindelig bolig

4

111 m²

7890 kr.

39888 kr.

![](https://vardebolig.dk/i/MOLIRIMEDIA/1955ee96-d789-42d9-4201-08dd8b99f0e0?width=800)

Almindelig bolig

4

105 m²

7890 kr.

39888 kr.

![](https://vardebolig.dk/i/MOLIRIMEDIA/3729e887-d536-42b7-419a-08dd8b99f0e0?width=800)

Almindelig bolig

4

113.5 m²

6025 kr.

15000 kr.

![](https://vardebolig.dk/i/MOLIRIMEDIA/e4596e32-15f8-445e-e576-08dd6148a5be?width=800)

## Afdelingens afstande til

Shopping

meter

Bus

meter

Togstation

meter

Bibliotek

meter

Skole

meter

Børnehave

meter

## Medlemmer af afdelingsbestyrelsen

Navn

Titel

Knud Erik Møller Pedersen

Formand

Hanne Moesgaard Madsen

Næstformand

Kurt Rotbøl

Bestyrelsesmedlem

Steen Sørensen

Bestyrelsesmedlem

Ruth Olesen

Bestyrelsesmedlem

Ole Olesen

Suppleant

Bjarne Erik Jensen

Suppleant

## Afdelingsdokumenter

Her finder du nyttig information om din afdeling, såsom husorden, vedligeholdelse af dit lejemål, referater m.m.

###

                                                Referater

[0406, Referat afdelingsmøde 2020, underskrevet.pdf](https://vardebolig.dk/p/Files/Boligdata/Dokumenter/99-406/Referater/0406--Referat-afdelingsm&#xF8;de-2020--underskrevet.pdf)
                                            [0406, Referat afdelingsmøde 2021, underskrevet.pdf](https://vardebolig.dk/p/Files/Boligdata/Dokumenter/99-406/Referater/0406--Referat-afdelingsm&#xF8;de-2021--underskrevet.pdf)
                                            [0406, Referat afdelingsmøde 2022, underskrevet.pdf](https://vardebolig.dk/p/Files/Boligdata/Dokumenter/99-406/Referater/0406--Referat-afdelingsm&#xF8;de-2022--underskrevet.pdf)
                                            [0406, Referat afdelingsmøde 2023, underskrevet.pdf](https://vardebolig.dk/p/Files/Boligdata/Dokumenter/99-406/Referater/0406--Referat-afdelingsm&#xF8;de-2023--underskrevet.pdf)
                                            [0406, Referat afdelingsmøde 2024, underskrevet.pdf](https://vardebolig.dk/p/Files/Boligdata/Dokumenter/99-406/Referater/0406--Referat-afdelingsm&#xF8;de-2024--underskrevet.pdf)
                                            [0406, Referat afdelingsmøde 2025, underskrevet.pdf](https://vardebolig.dk/p/Files/Boligdata/Dokumenter/99-406/Referater/0406--Referat-afdelingsm&#xF8;de-2025--underskrevet.pdf)
                                            [0406, Referat ekstraordinært afdelingsmøde 2022, underskrevet.pdf](https://vardebolig.dk/p/Files/Boligdata/Dokumenter/99-406/Referater/0406--Referat-ekstraordin&#xE6;rt-afdelingsm&#xF8;de-2022--underskrevet.pdf)

###

                                                Dagsordner

[Afd. 0406, dagsorden 2020.pdf](https://vardebolig.dk/p/Files/Boligdata/Dokumenter/99-406/Dagsordner/Afd.-0406--dagsorden-2020.pdf)
                                            [Afd. 0406, dagsorden 2021.pdf](https://vardebolig.dk/p/Files/Boligdata/Dokumenter/99-406/Dagsordner/Afd.-0406--dagsorden-2021.pdf)
                                            [Afd. 0406, dagsorden 2022.pdf](https://vardebolig.dk/p/Files/Boligdata/Dokumenter/99-406/Dagsordner/Afd.-0406--dagsorden-2022.pdf)
                                            [Afd. 0406, dagsorden 2023.pdf](https://vardebolig.dk/p/Files/Boligdata/Dokumenter/99-406/Dagsordner/Afd.-0406--dagsorden-2023.pdf)
                                            [Afd. 0406, dagsorden 2024.pdf](https://vardebolig.dk/p/Files/Boligdata/Dokumenter/99-406/Dagsordner/Afd.-0406--dagsorden-2024.pdf)
                                            [Afd. 0406, dagsorden 2025, forslag.pdf](https://vardebolig.dk/p/Files/Boligdata/Dokumenter/99-406/Dagsordner/Afd.-0406--dagsorden-2025--forslag.pdf)
                                            [Afd. 0406, dagsorden 2025.pdf](https://vardebolig.dk/p/Files/Boligdata/Dokumenter/99-406/Dagsordner/Afd.-0406--dagsorden-2025.pdf)

###

                                                Dokumenter

[0406, 2020, Vedligeholdelsesreglement, VBA, underskrevet.pdf](https://vardebolig.dk/p/Files/Boligdata/Dokumenter/99-406/Dokumenter/0406--2020--Vedligeholdelsesreglement--VBA--underskrevet.pdf)
                                            [Afd. 0406, Husorden 2023.pdf](https://vardebolig.dk/p/Files/Boligdata/Dokumenter/99-406/Dokumenter/Afd.-0406--Husorden-2023.pdf)
                                            [Afd. 0406, Råderetskatalog 2023.pdf](https://vardebolig.dk/p/Files/Boligdata/Dokumenter/99-406/Dokumenter/Afd.-0406--R&#xE5;deretskatalog-2023.pdf)

###

                                                Referater afdelingsbestyrelse

[Referat bestyrelsesmøde 02.09.21.pdf](https://vardebolig.dk/p/Files/Boligdata/Dokumenter/99-406/Referater%20afdelingsbestyrelse/Referat-bestyrelsesm&#xF8;de-02.09.21.pdf)
                                            [Referat bestyrelsesmøde 02.11.23.pdf](https://vardebolig.dk/p/Files/Boligdata/Dokumenter/99-406/Referater%20afdelingsbestyrelse/Referat-bestyrelsesm&#xF8;de-02.11.23.pdf)
                                            [Referat bestyrelsesmøde 03.02.22.pdf](https://vardebolig.dk/p/Files/Boligdata/Dokumenter/99-406/Referater%20afdelingsbestyrelse/Referat-bestyrelsesm&#xF8;de-03.02.22.pdf)
                                            [Referat bestyrelsesmøde 03.03.20.pdf](https://vardebolig.dk/p/Files/Boligdata/Dokumenter/99-406/Referater%20afdelingsbestyrelse/Referat-bestyrelsesm&#xF8;de-03.03.20.pdf)
                                            [Referat bestyrelsesmøde 03.04.24.pdf](https://vardebolig.dk/p/Files/Boligdata/Dokumenter/99-406/Referater%20afdelingsbestyrelse/Referat-bestyrelsesm&#xF8;de-03.04.24.pdf)
                                            [Referat bestyrelsesmøde 05.09.22.pdf](https://vardebolig.dk/p/Files/Boligdata/Dokumenter/99-406/Referater%20afdelingsbestyrelse/Referat-bestyrelsesm&#xF8;de-05.09.22.pdf)
                                            [Referat bestyrelsesmøde 07.12.21.pdf](https://vardebolig.dk/p/Files/Boligdata/Dokumenter/99-406/Referater%20afdelingsbestyrelse/Referat-bestyrelsesm&#xF8;de-07.12.21.pdf)
                                            [Referat bestyrelsesmøde 09.02.2026.pdf](https://vardebolig.dk/p/Files/Boligdata/Dokumenter/99-406/Referater%20afdelingsbestyrelse/Referat-bestyrelsesm&#xF8;de-09.02.2026.pdf)
                                            [Referat bestyrelsesmøde 09.07.20.pdf](https://vardebolig.dk/p/Files/Boligdata/Dokumenter/99-406/Referater%20afdelingsbestyrelse/Referat-bestyrelsesm&#xF8;de-09.07.20.pdf)
                                            [Referat bestyrelsesmøde 14.08.23.pdf](https://vardebolig.dk/p/Files/Boligdata/Dokumenter/99-406/Referater%20afdelingsbestyrelse/Referat-bestyrelsesm&#xF8;de-14.08.23.pdf)
                                            [Referat bestyrelsesmøde 14.11.22.pdf](https://vardebolig.dk/p/Files/Boligdata/Dokumenter/99-406/Referater%20afdelingsbestyrelse/Referat-bestyrelsesm&#xF8;de-14.11.22.pdf)
                                            [Referat bestyrelsesmøde 20.05.21.pdf](https://vardebolig.dk/p/Files/Boligdata/Dokumenter/99-406/Referater%20afdelingsbestyrelse/Referat-bestyrelsesm&#xF8;de-20.05.21.pdf)
                                            [Referat bestyrelsesmøde 22.10.20.pdf](https://vardebolig.dk/p/Files/Boligdata/Dokumenter/99-406/Referater%20afdelingsbestyrelse/Referat-bestyrelsesm&#xF8;de-22.10.20.pdf)
                                            [Referat bestyrelsesmøde 27.02.23.pdf](https://vardebolig.dk/p/Files/Boligdata/Dokumenter/99-406/Referater%20afdelingsbestyrelse/Referat-bestyrelsesm&#xF8;de-27.02.23.pdf)
                                            [Referat bestyrelsesmøde 30.04.20.pdf](https://vardebolig.dk/p/Files/Boligdata/Dokumenter/99-406/Referater%20afdelingsbestyrelse/Referat-bestyrelsesm&#xF8;de-30.04.20.pdf)
