---
title: "99-Afdeling 0410"
description: "99-410"
date: "2025-07-31"
created: "2025-03-18"
---

-
-
-

https://maps.google.dk/?q=55.6312442,8.4736632

# Afdeling 0410

## Velkommen til Afdeling 0410

Lejlighederne er beliggende i Lerpøtparken i den nordlige del af
Varde. Lejlighederne ligger i etageejendomme, med stue, 1. sal og 2. sal. Der er ingen
haver, men grønne arealer, som kan benyttes af alle beboere. I kælderen er der fællesvaskeri. Lejlighederne blev taget i brug i 1973-1977.
I afdelingen er der handicapvenlige 2-værelses gavllejligheder beliggende i stueetagerne.
Afdelingen har gennemgået en større renovering i perioden fra primo 2003 til og med medio 2005. Hvor alle altaner er blevet overdækket med Velux-vinduer. Alle beboere har fået små udestuer, i stedet for de meget utætte altaner, som afdelingen tidligere var plaget af. Derudover er alle tage og indgangspartier udskiftet. Alle gårdhaver er renoveret, hvor der nu er borde og bænke, grillområde, vandspejl og børnevenlige områder - legeplads og sandkasser.

## Fakta for afdelingen...

Fjernvarme

Ja

El eksl. i leje

Ja

Husdyr

Ja

Husdyr tilladt - én hund eller én kat

## Antal boliger i afdelingen

Almindelig bolig

1 værelses

Almindelig bolig

Almindelig bolig

2 værelses

Almindelig bolig

Almindelig bolig

3 værelses

Almindelig bolig

Almindelig bolig

4 værelses

Almindelig bolig

Almindelig bolig

5 værelses

Almindelig bolig

Boligtype

Værelser

Størrelse

Husleje

Indskud/dp

Plantegning

Almindelig bolig

1

35.2 m²

2109 kr.

6000 kr.

![](https://vardebolig.dk/i/MOLIRIMEDIA/167c5329-70a1-4267-e5cb-08dd6148a5be?width=800)

Almindelig bolig

2

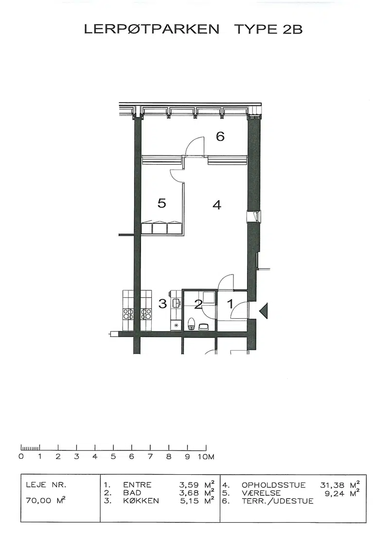
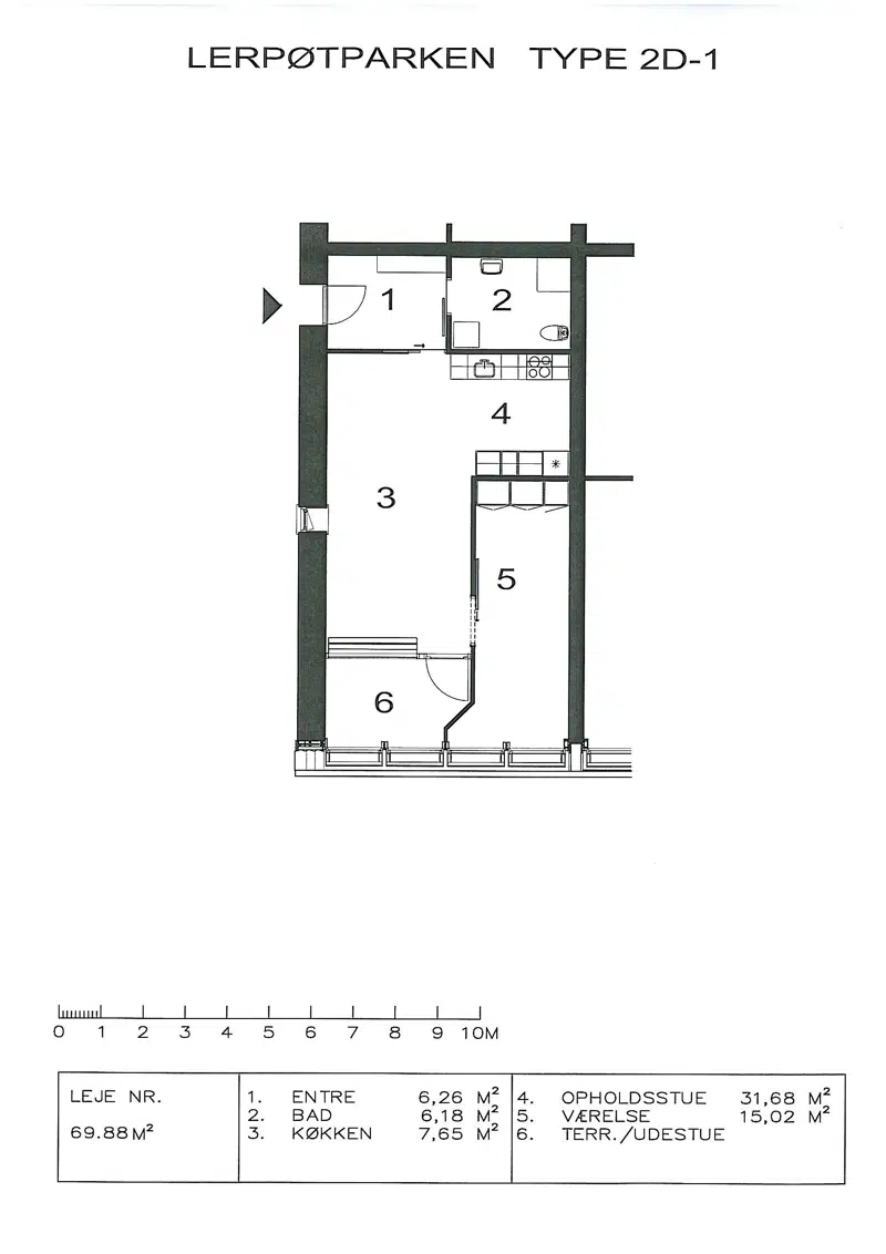
69.88 m²

4394 kr.

10000 kr.

![](https://vardebolig.dk/i/MOLIRIMEDIA/e90aa221-2874-4b35-e624-08dd6148a5be?width=800)

Almindelig bolig

2

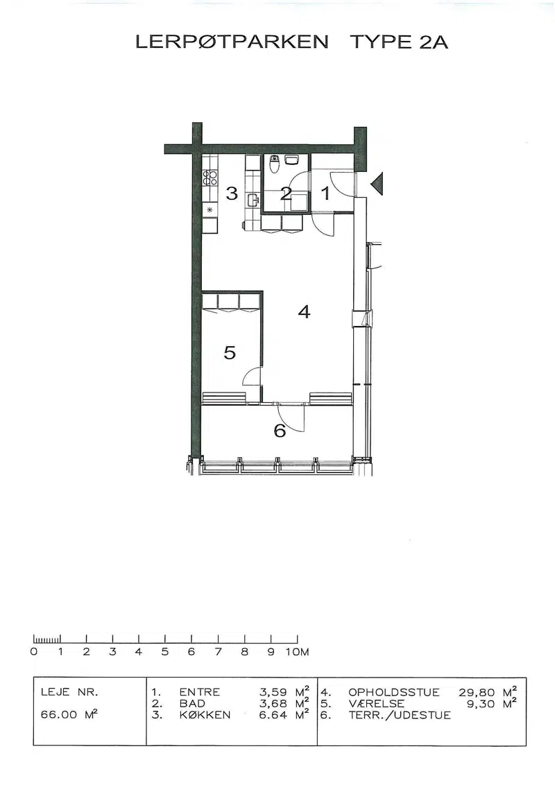
64 m²

3954 kr.

10000 kr.

![](https://vardebolig.dk/i/MOLIRIMEDIA/a90c7930-81d0-443b-e719-08dd6148a5be?width=800)

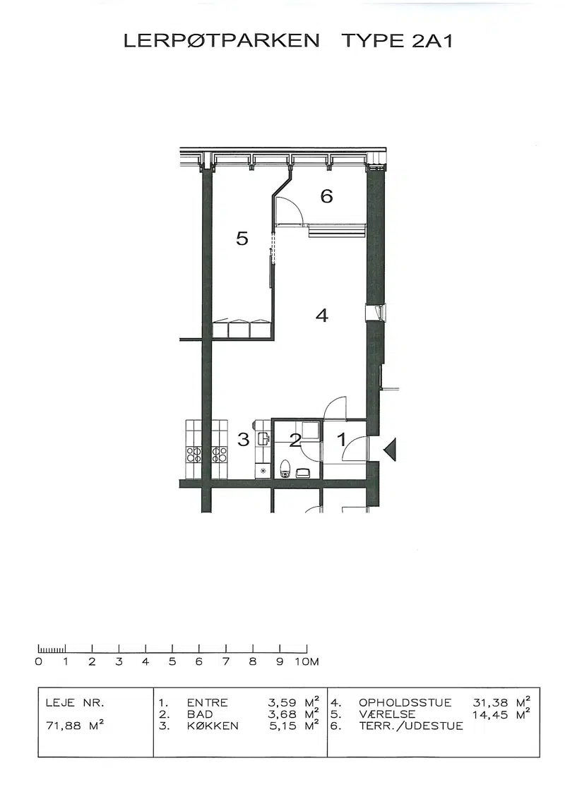
Almindelig bolig

2

71.88 m²

4485 kr.

6800 kr.

![](https://vardebolig.dk/i/MOLIRIMEDIA/d5562048-f884-4e0e-e64a-08dd6148a5be?width=800)

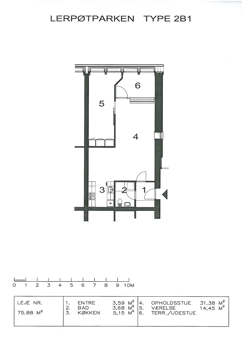
Almindelig bolig

2

75.88 m²

4663 kr.

7100 kr.

![](https://vardebolig.dk/i/MOLIRIMEDIA/f71f4b69-a780-4ccf-e5a7-08dd6148a5be?width=800)

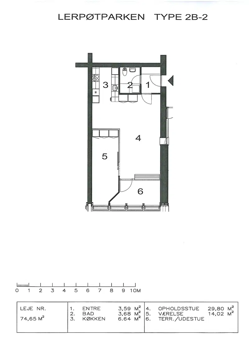
Almindelig bolig

2

74.65 m²

4265 kr.

7100 kr.

![](https://vardebolig.dk/i/MOLIRIMEDIA/bcc96224-1cb2-4be5-e52a-08dd6148a5be?width=800)

Almindelig bolig

2

70 m²

4248 kr.

10000 kr.

![](https://vardebolig.dk/i/MOLIRIMEDIA/14ab4315-19f4-4e60-e4fb-08dd6148a5be?width=800)

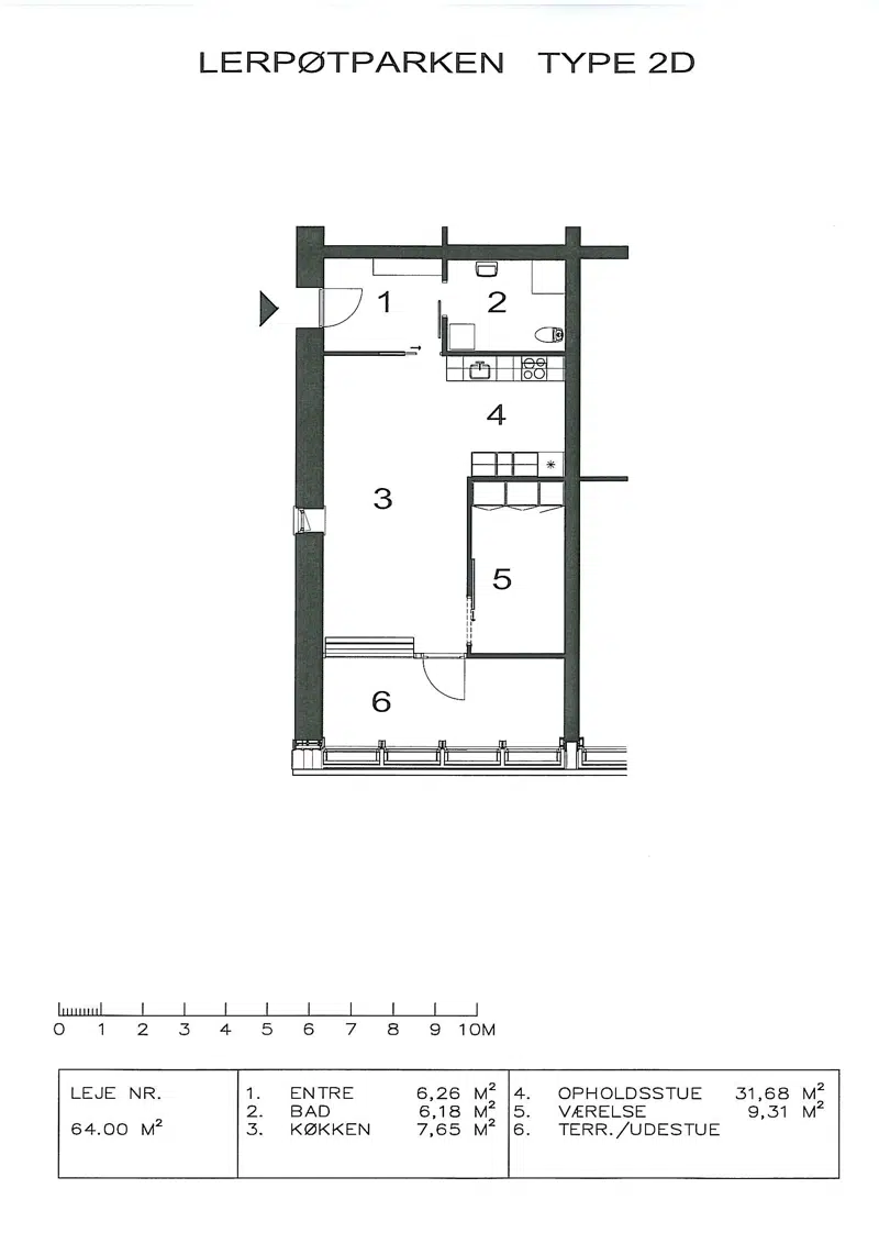
Almindelig bolig

2

66 m²

4050 kr.

6800 kr.

![](https://vardebolig.dk/i/MOLIRIMEDIA/59231675-73b8-47bf-e50d-08dd6148a5be?width=800)

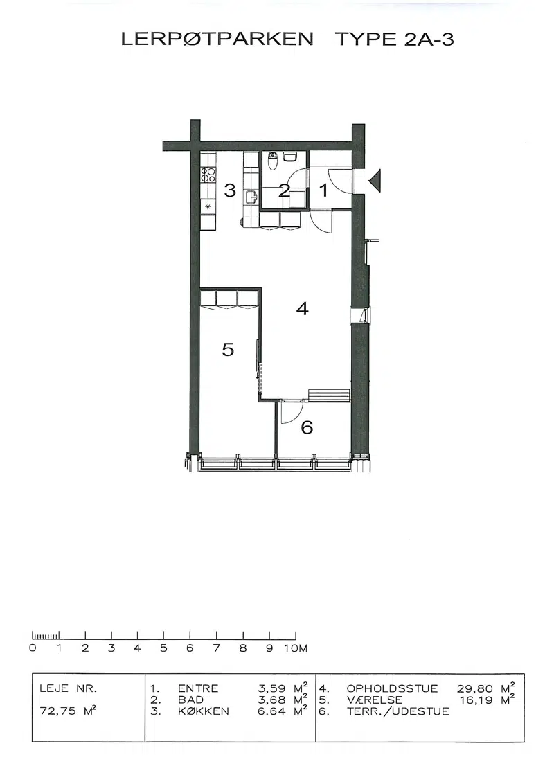
Almindelig bolig

2

72.75 m²

4067 kr.

10000 kr.

![](https://vardebolig.dk/i/MOLIRIMEDIA/3708ed73-eb76-4d4b-e65d-08dd6148a5be?width=800)

Almindelig bolig

2

76.4 m²

4077 kr.

6800 kr.

![](https://vardebolig.dk/i/MOLIRIMEDIA/2a6e61e6-f22e-44d8-e628-08dd6148a5be?width=800)

Almindelig bolig

3

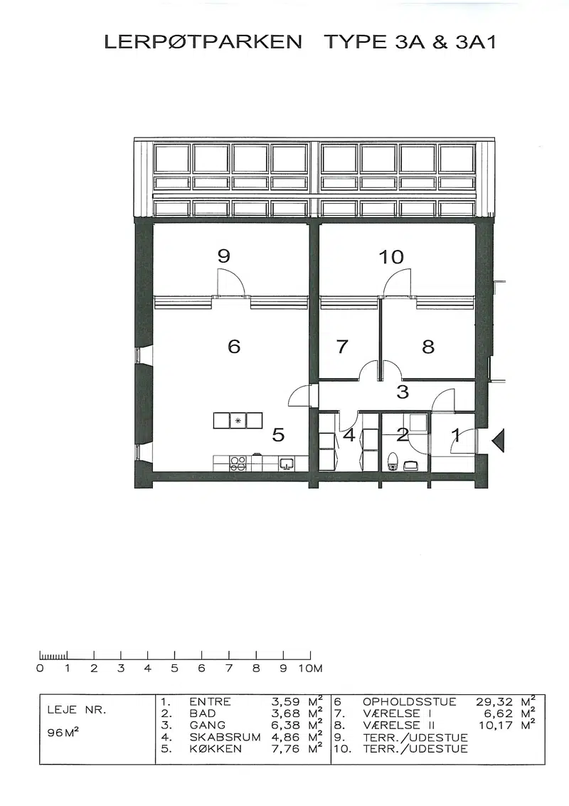
101 m²

5785 kr.

10300 kr.

Almindelig bolig

3

101 m²

6365 kr.

10300 kr.

![](https://vardebolig.dk/i/MOLIRIMEDIA/4fb85254-90ae-4a16-e600-08dd6148a5be?width=800)

Almindelig bolig

3

96 m²

5529 kr.

9900 kr.

![](https://vardebolig.dk/i/MOLIRIMEDIA/320256c4-977d-4208-e545-08dd6148a5be?width=800)

Almindelig bolig

4

134 m²

7409 kr.

12500 kr.

![](https://vardebolig.dk/i/MOLIRIMEDIA/b9d0c670-1938-4598-e54a-08dd6148a5be?width=800)

Almindelig bolig

4

128.4 m²

6986 kr.

11300 kr.

![](https://vardebolig.dk/i/MOLIRIMEDIA/42291191-5292-49c0-e5b2-08dd6148a5be?width=800)

Almindelig bolig

5

160.2 m²

7409 kr.

25000 kr.

![](https://vardebolig.dk/i/MOLIRIMEDIA/036a2690-f48c-4223-e571-08dd6148a5be?width=800)

## Afdelingens afstande til

Shopping

meter

Bus

meter

Togstation

meter

Bibliotek

meter

Skole

meter

Børnehave

meter

## Afdelingsdokumenter

Her finder du nyttig information om din afdeling, såsom husorden, vedligeholdelse af dit lejemål, referater m.m.

###

                                                Referater

[0406 0410 0412 0417 0428 og 0601 referat ekstraordinært afdelingsmøde  2022, underskrevet.pdf](https://vardebolig.dk/p/Files/Boligdata/Dokumenter/99-410/Referater/0406-0410-0412-0417-0428-og-0601-referat-ekstraordin&#xE6;rt-afdelingsm&#xF8;de--2022--underskrevet.pdf)
                                            [0410, Referat afdelingsmøde 11.09.25, underskrevet.pdf](https://vardebolig.dk/p/Files/Boligdata/Dokumenter/99-410/Referater/0410--Referat-afdelingsm&#xF8;de-11.09.25--underskrevet.pdf)
                                            [0410, Referat afdelingsmøde 2023 underskrevet.pdf](https://vardebolig.dk/p/Files/Boligdata/Dokumenter/99-410/Referater/0410--Referat-afdelingsm&#xF8;de-2023-underskrevet.pdf)
                                            [0410, Referat afdelingsmøde 28.08.24, underskrevet.pdf](https://vardebolig.dk/p/Files/Boligdata/Dokumenter/99-410/Referater/0410--Referat-afdelingsm&#xF8;de-28.08.24--underskrevet.pdf)
                                            [0410, referat fra afdelingsmøde den 09.09.21, underskrevet.pdf](https://vardebolig.dk/p/Files/Boligdata/Dokumenter/99-410/Referater/0410--referat-fra-afdelingsm&#xF8;de-den-09.09.21--underskrevet.pdf)
                                            [0410 referat afdelingsmøde underskrevet 2020.pdf](https://vardebolig.dk/p/Files/Boligdata/Dokumenter/99-410/Referater/0410-referat-afdelingsm&#xF8;de-underskrevet-2020.pdf)
                                            [0410 referat ekstraordinært afdelingsmøde 18.11.21.pdf](https://vardebolig.dk/p/Files/Boligdata/Dokumenter/99-410/Referater/0410-referat-ekstraordin&#xE6;rt-afdelingsm&#xF8;de-18.11.21.pdf)
                                            [Afd. 0410, referat afdelingsmøde 2022, underskrevet.pdf](https://vardebolig.dk/p/Files/Boligdata/Dokumenter/99-410/Referater/Afd.-0410--referat-afdelingsm&#xF8;de-2022--underskrevet.pdf)
                                            [Referat afdelingsbestyrelsesmøde 4.5.2020.pdf](https://vardebolig.dk/p/Files/Boligdata/Dokumenter/99-410/Referater/Referat-afdelingsbestyrelsesm&#xF8;de-4.5.2020.pdf)

###

                                                Dagsordner

[Afd. 0410, dagsorden 2020, forslag.pdf](https://vardebolig.dk/p/Files/Boligdata/Dokumenter/99-410/Dagsordner/Afd.-0410--dagsorden-2020--forslag.pdf)
                                            [Afd. 0410, dagsorden 2020.pdf](https://vardebolig.dk/p/Files/Boligdata/Dokumenter/99-410/Dagsordner/Afd.-0410--dagsorden-2020.pdf)
                                            [Afd. 0410, dagsorden 2021, forslag.pdf](https://vardebolig.dk/p/Files/Boligdata/Dokumenter/99-410/Dagsordner/Afd.-0410--dagsorden-2021--forslag.pdf)
                                            [Afd. 0410, dagsorden 2021.pdf](https://vardebolig.dk/p/Files/Boligdata/Dokumenter/99-410/Dagsordner/Afd.-0410--dagsorden-2021.pdf)
                                            [Afd. 0410, dagsorden 2022.pdf](https://vardebolig.dk/p/Files/Boligdata/Dokumenter/99-410/Dagsordner/Afd.-0410--dagsorden-2022.pdf)
                                            [Afd. 0410, dagsorden 2023.pdf](https://vardebolig.dk/p/Files/Boligdata/Dokumenter/99-410/Dagsordner/Afd.-0410--dagsorden-2023.pdf)
                                            [Afd. 0410, dagsorden 2024.pdf](https://vardebolig.dk/p/Files/Boligdata/Dokumenter/99-410/Dagsordner/Afd.-0410--dagsorden-2024.pdf)
                                            [Afd. 0410, dagsorden 2025.pdf](https://vardebolig.dk/p/Files/Boligdata/Dokumenter/99-410/Dagsordner/Afd.-0410--dagsorden-2025.pdf)

###

                                                Dokumenter

[0410, 2020, Vedligeholdelsesreglement, VBA, underskrevet.pdf](https://vardebolig.dk/p/Files/Boligdata/Dokumenter/99-410/Dokumenter/0410--2020--Vedligeholdelsesreglement--VBA--underskrevet.pdf)
                                            [Afd. 0410, Husorden 2023.pdf](https://vardebolig.dk/p/Files/Boligdata/Dokumenter/99-410/Dokumenter/Afd.-0410--Husorden-2023.pdf)
                                            [Afd. 0410, Råderetskatalog 2023.pdf](https://vardebolig.dk/p/Files/Boligdata/Dokumenter/99-410/Dokumenter/Afd.-0410--R&#xE5;deretskatalog-2023.pdf)
