---
title: "99-Afdeling 0413"
description: "99-413"
date: "2025-09-18"
created: "2025-03-18"
---

-
-
-
-

https://maps.google.dk/?q=55.632453,8.5016494

# Afdeling 0413

## Velkommen til Afdeling 0413

Rækkehusene er beliggende på Skovkrogen den østlige del af Varde. Lejlighederne er enten i et plan, eller fordelt på stue og 1-sal.
Til lejlighederne er der tilhørende haver. Lejlighederne blev taget i brug i 1984.
-
Der er mulighed for at leje carport i afdelingen.

## Fakta for afdelingen...

Fjernvarme

Ja

El eksl. i leje

Ja

Husdyr

Ja

Såfremt boligtager ønsker at anskaffe et husdyr, skal der, før anskaffelse heraf, ansøges om tilladelse hos boligselskabet. Er der ikke ansøgt, og givet tilladelse, kan husdyret forlanges fjernet. Der kan kun ansøges om hund og ikke kat!

Have

Ja

## Antal boliger i afdelingen

Almindelig bolig

2 værelses

Almindelig bolig

Almindelig bolig

3 værelses

Almindelig bolig

Ungdomsbolig

3 værelses

Ungdomsbolig

Almindelig bolig

4 værelses

Almindelig bolig

Boligtype

Værelser

Størrelse

Husleje

Indskud/dp

Plantegning

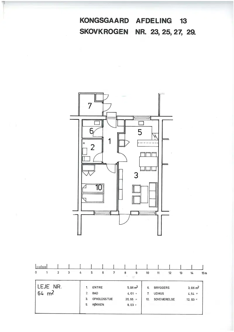
Almindelig bolig

2

64 m²

4052 kr.

10000 kr.

![](https://vardebolig.dk/i/MOLIRIMEDIA/5e90ca51-7e49-444d-e6dd-08dd6148a5be?width=800)

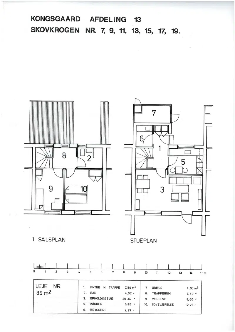
Almindelig bolig

3

85 m²

5071 kr.

9400 kr.

![](https://vardebolig.dk/i/MOLIRIMEDIA/8487c285-3bb6-4e9b-e54e-08dd6148a5be?width=800)

Almindelig bolig

4

95 m²

5557 kr.

10200 kr.

![](https://vardebolig.dk/i/MOLIRIMEDIA/e7005994-aa23-4aaf-e4d5-08dd6148a5be?width=800)

Ungdomsbolig

3

81 m²

6168 kr.

20000 kr.

![](https://vardebolig.dk/i/MOLIRIMEDIA/c92792fb-4e1a-46e1-4156-08dd8b99f0e0?width=800)

## Afdelingens afstande til

Shopping

meter

Bus

meter

Togstation

meter

Bibliotek

meter

Skole

meter

Børnehave

meter

## Medlemmer af afdelingsbestyrelsen

Navn

Titel

Jette Lund

Formand

Henning Pedersen

Næstformand

Karen Jensen

Bestyrelsesmedlem

Niels Sørensen

Suppleant

## Afdelingsdokumenter

Her finder du nyttig information om din afdeling, såsom husorden, vedligeholdelse af dit lejemål, referater m.m.

###

                                                Referater

[03.09.2020, Referat afdelingsmøde.pdf](https://vardebolig.dk/p/Files/Boligdata/Dokumenter/99-413/Referater/03.09.2020--Referat-afdelingsm&#xF8;de.pdf)
                                            [11.09.2024, Referat afdelingsmøde.pdf](https://vardebolig.dk/p/Files/Boligdata/Dokumenter/99-413/Referater/11.09.2024--Referat-afdelingsm&#xF8;de.pdf)
                                            [14.09.2023, Referat afdelingsmøde.pdf](https://vardebolig.dk/p/Files/Boligdata/Dokumenter/99-413/Referater/14.09.2023--Referat-afdelingsm&#xF8;de.pdf)
                                            [15.02.2022, Referat afdelingsmøde.pdf](https://vardebolig.dk/p/Files/Boligdata/Dokumenter/99-413/Referater/15.02.2022--Referat-afdelingsm&#xF8;de.pdf)
                                            [16.09.2021, Referat afdelingsmøde.pdf](https://vardebolig.dk/p/Files/Boligdata/Dokumenter/99-413/Referater/16.09.2021--Referat-afdelingsm&#xF8;de.pdf)
                                            [17.09.2025, Referat afdelingsmøde.pdf](https://vardebolig.dk/p/Files/Boligdata/Dokumenter/99-413/Referater/17.09.2025--Referat-afdelingsm&#xF8;de.pdf)

###

                                                Dagsordner

[Afd. 0413, dagsorden 2020, forslag.pdf](https://vardebolig.dk/p/Files/Boligdata/Dokumenter/99-413/Dagsordner/Afd.-0413--dagsorden-2020--forslag.pdf)
                                            [Afd. 0413, dagsorden 2020.pdf](https://vardebolig.dk/p/Files/Boligdata/Dokumenter/99-413/Dagsordner/Afd.-0413--dagsorden-2020.pdf)
                                            [Afd. 0413, dagsorden 2021.pdf](https://vardebolig.dk/p/Files/Boligdata/Dokumenter/99-413/Dagsordner/Afd.-0413--dagsorden-2021.pdf)
                                            [Afd. 0413, dagsorden 2022.pdf](https://vardebolig.dk/p/Files/Boligdata/Dokumenter/99-413/Dagsordner/Afd.-0413--dagsorden-2022.pdf)
                                            [Afd. 0413, dagsorden 2023.pdf](https://vardebolig.dk/p/Files/Boligdata/Dokumenter/99-413/Dagsordner/Afd.-0413--dagsorden-2023.pdf)
                                            [Afd. 0413, dagsorden 2024.pdf](https://vardebolig.dk/p/Files/Boligdata/Dokumenter/99-413/Dagsordner/Afd.-0413--dagsorden-2024.pdf)
                                            [Afd. 0413, dagsorden 2025, forslag.pdf](https://vardebolig.dk/p/Files/Boligdata/Dokumenter/99-413/Dagsordner/Afd.-0413--dagsorden-2025--forslag.pdf)
                                            [Afd. 0413, dagsorden 2025.pdf](https://vardebolig.dk/p/Files/Boligdata/Dokumenter/99-413/Dagsordner/Afd.-0413--dagsorden-2025.pdf)

###

                                                Dokumenter

[0413, 2020, Vedligeholdelsesreglement, VBA, underskrevet.pdf](https://vardebolig.dk/p/Files/Boligdata/Dokumenter/99-413/Dokumenter/0413--2020--Vedligeholdelsesreglement--VBA--underskrevet.pdf)
                                            [Afd. 0413, Husorden 2023.pdf](https://vardebolig.dk/p/Files/Boligdata/Dokumenter/99-413/Dokumenter/Afd.-0413--Husorden-2023.pdf)
                                            [Afd. 0413, Råderetskatalog 2023.pdf](https://vardebolig.dk/p/Files/Boligdata/Dokumenter/99-413/Dokumenter/Afd.-0413--R&#xE5;deretskatalog-2023.pdf)
