---
title: "99-Afdeling 0417"
description: "99-417"
date: "2026-01-29"
created: "2025-03-18"
---

-
-
-
-
-
-
-
-
-
-
-
-
-

https://maps.google.dk/?q=55.6352151,8.4825078

# Afdeling 0417

## Velkommen til Afdeling 0417

Rækkehusene er beliggende på Nørremarksvej, i den nordlige del af Varde.
Til alle lejligheder er der have. (Dog er der enkelte lejemål, hvor der kun er terrasse til)
Lejlighederne blev taget i brug i 1992, 1993, 1998 og 2011 (i perioden 15.08.11-01.11.11). Rækkehusene findes i både et- og to-plan.
Der forefindes vaskeri i afdelingen.
-
Lejlighederne/rækkehusene er beliggende på Grøntoften i Tinghøj, ca. 4 km. fra Varde centrum.
Rækkehusene er i et-plan ved jorden. Der forefindes have til alle lejemålene.
Lejlighederne blev taget i brug d. 1. august 1998.
-
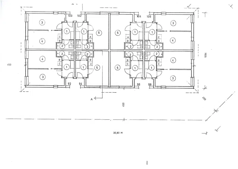
Ungdomsboligerne er beliggende på Nørremarksvej 92-122, i den nordlige del af Varde.
Værelserne ligger ved jorden, der er fællesvaskeri.
Værelserne lejes ud til unge under uddannelse. Værelserne blev taget i brug i 1994.

## Fakta for afdelingen...

Fjernvarme

Ja

El eksl. i leje

Ja

Husdyr

Ja

Husdyr tilladt - én hund eller én inde-kat
-
Husdyr ikke tilladt på Nørremarksvej 92-122 (ungdomsboliger).

Have

Ja

## Antal boliger i afdelingen

Ungdomsbolig

1 værelses

Ungdomsbolig

Almindelig bolig

2 værelses

Almindelig bolig

Ungdomsbolig

2 værelses

Ungdomsbolig

Almindelig bolig

3 værelses

Almindelig bolig

Almindelig bolig

4 værelses

Almindelig bolig

Boligtype

Værelser

Størrelse

Husleje

Indskud/dp

Plantegning

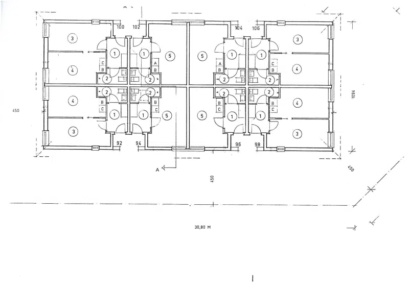
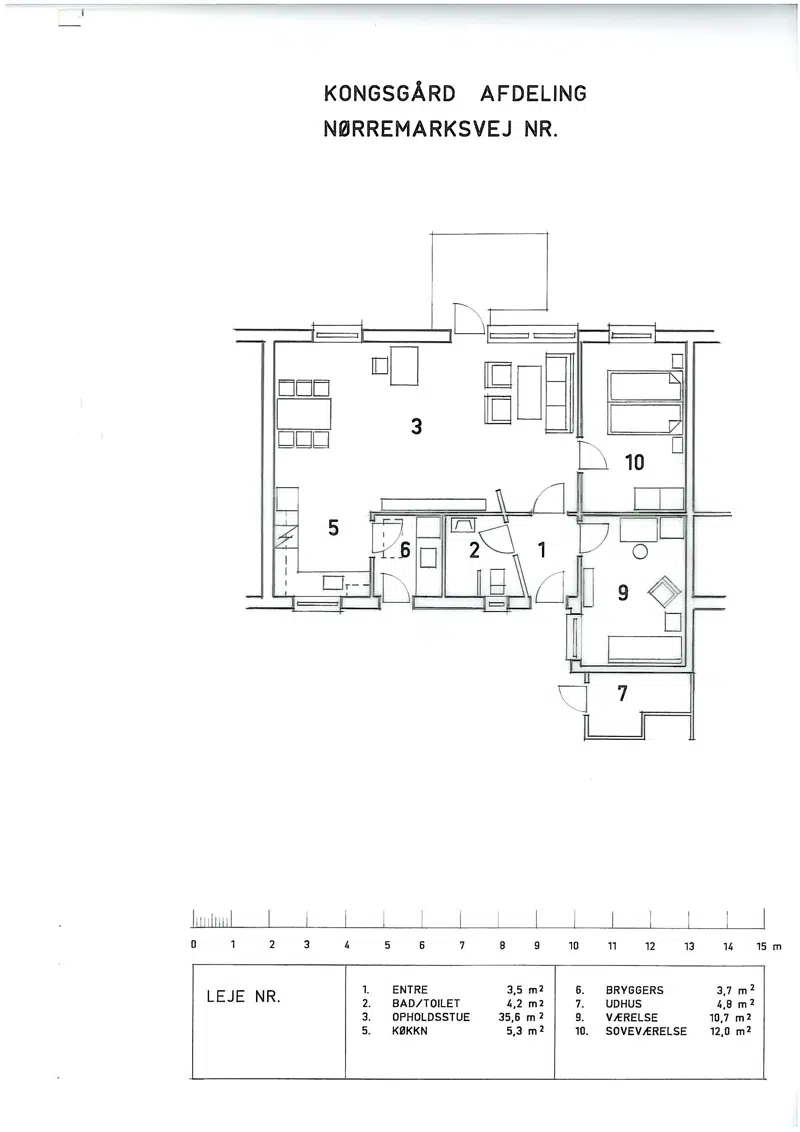
Almindelig bolig

2

65.9 m²

5227 kr.

13528 kr.

![](https://vardebolig.dk/i/MOLIRIMEDIA/ac9822dc-974b-4b1c-e5a1-08dd6148a5be?width=800)

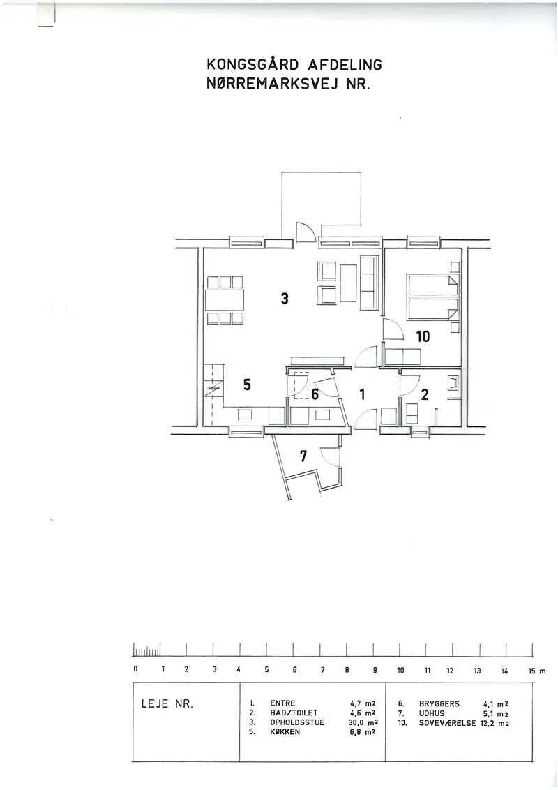
Almindelig bolig

2

74 m²

4992 kr.

12300 kr.

![](https://vardebolig.dk/i/MOLIRIMEDIA/58bc3b11-45c4-4798-e6ac-08dd6148a5be?width=800)

Almindelig bolig

3

92.1 m²

6532 kr.

17777 kr.

![](https://vardebolig.dk/i/MOLIRIMEDIA/1ca2cf6c-fae8-4379-e612-08dd6148a5be?width=800)

Almindelig bolig

3

87.25 m²

6038 kr.

25272 kr.

![](https://vardebolig.dk/i/MOLIRIMEDIA/70b09829-53fc-496d-e650-08dd6148a5be?width=800)

Almindelig bolig

3

87.45 m²

6038 kr.

25272 kr.

![](https://vardebolig.dk/i/MOLIRIMEDIA/5e24b744-9ca5-40f9-e4f7-08dd6148a5be?width=800)

Almindelig bolig

3

85.1 m²

6445 kr.

16524 kr.

![](https://vardebolig.dk/i/MOLIRIMEDIA/25617cd5-d24f-4e06-e717-08dd6148a5be?width=800)

Almindelig bolig

3

85.9 m²

6519 kr.

16645 kr.

![](https://vardebolig.dk/i/MOLIRIMEDIA/a0744ad5-5bcf-4809-e6ab-08dd6148a5be?width=800)

Almindelig bolig

3

88 m²

6135 kr.

14200 kr.

![](https://vardebolig.dk/i/MOLIRIMEDIA/3d8b5c1b-c1ba-4a26-e646-08dd6148a5be?width=800)

Almindelig bolig

3

88 m²

5737 kr.

14050 kr.

![](https://vardebolig.dk/i/MOLIRIMEDIA/a8a4fa05-d435-4693-e570-08dd6148a5be?width=800)

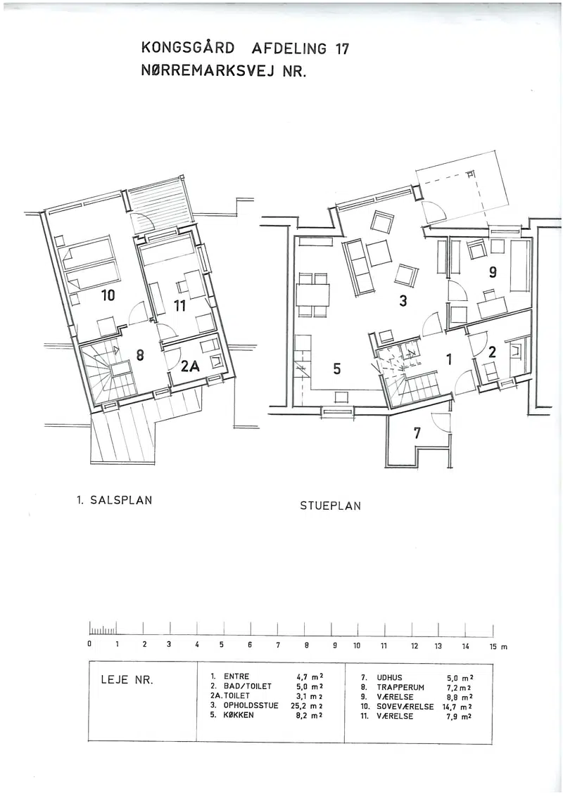
Almindelig bolig

4

96.62 m²

6493 kr.

28244 kr.

![](https://vardebolig.dk/i/MOLIRIMEDIA/ff52cfe8-7bb6-4c4a-e4c2-08dd6148a5be?width=800)

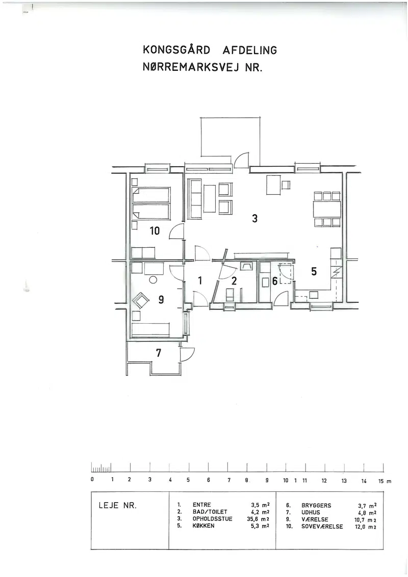
Almindelig bolig

4

96.4 m²

7168 kr.

18285 kr.

![](https://vardebolig.dk/i/MOLIRIMEDIA/d558edf7-020b-4e66-e6d0-08dd6148a5be?width=800)

Almindelig bolig

4

105.5 m²

7266 kr.

16350 kr.

![](https://vardebolig.dk/i/MOLIRIMEDIA/0ec31d26-6caf-404a-e71e-08dd6148a5be?width=800)

Almindelig bolig

4

105 m²

6643 kr.

16250 kr.

![](https://vardebolig.dk/i/MOLIRIMEDIA/a39ac748-4ce4-4862-e690-08dd6148a5be?width=800)

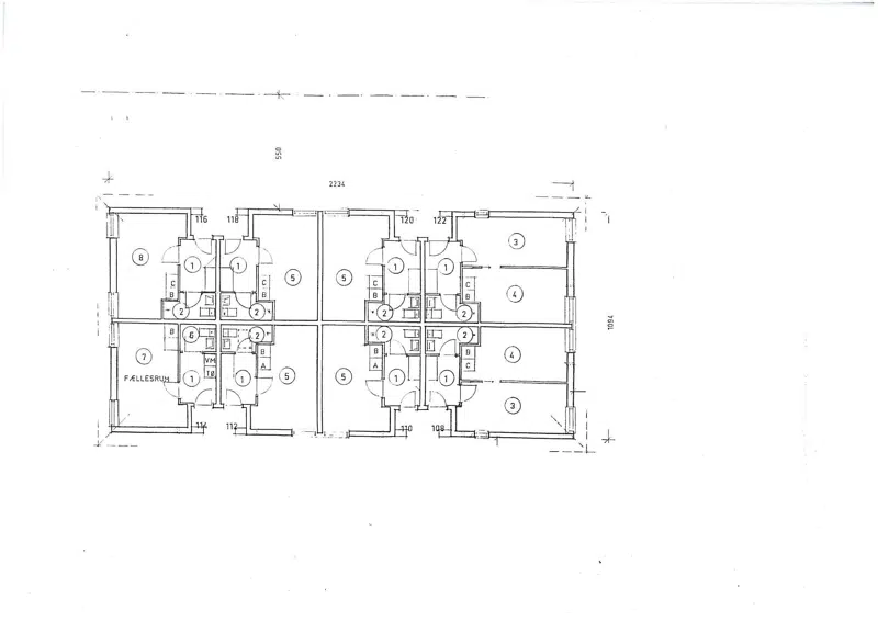
Ungdomsbolig

1

26.6 m²

2302 kr.

6003 kr.

![](https://vardebolig.dk/i/MOLIRIMEDIA/b6ec8d99-fbe8-4296-e669-08dd6148a5be?width=800)

Ungdomsbolig

1

25.3 m²

2209 kr.

5724 kr.

![](https://vardebolig.dk/i/MOLIRIMEDIA/95c96c2c-3c00-4597-e58a-08dd6148a5be?width=800)

Ungdomsbolig

2

38 m²

3051 kr.

8058 kr.

Ungdomsbolig

2

38 m²

3051 kr.

7953 kr.

![](https://vardebolig.dk/i/MOLIRIMEDIA/010c85d4-45cc-4051-e6a2-08dd6148a5be?width=800)

## Afdelingens afstande til

Shopping

meter

Bus

meter

Togstation

meter

Bibliotek

meter

Skole

meter

Børnehave

meter

## Medlemmer af afdelingsbestyrelsen

Navn

Titel

Anita Ravn Sørensen

Formand

Anne Marie Hannberg

Næstformand

Lone Jochumsen

Bestyrelsesmedlem

Henning Nielsen

Bestyrelsesmedlem

Jytte Sørensen

Bestyrelsesmedlem

Mona Pedersen

Suppleant

Marit Johanne Overby

Suppleant

## Afdelingsdokumenter

Her finder du nyttig information om din afdeling, såsom husorden, vedligeholdelse af dit lejemål, referater m.m.

###

                                                Referater

[0406 0410 0412 0417 0428 og 0601 referat ekstraordinært afdelingsmøde  2022, underskrevet.pdf](https://vardebolig.dk/p/Files/Boligdata/Dokumenter/99-417/Referater/0406-0410-0412-0417-0428-og-0601-referat-ekstraordin&#xE6;rt-afdelingsm&#xF8;de--2022--underskrevet.pdf)
                                            [0417, Referat afdelingsmøde 09.05.25, underskrevet.pdf](https://vardebolig.dk/p/Files/Boligdata/Dokumenter/99-417/Referater/0417--Referat-afdelingsm&#xF8;de-09.05.25--underskrevet.pdf)
                                            [0417, Referat afdelingsmøde 22.08.2024, underskrevet.pdf](https://vardebolig.dk/p/Files/Boligdata/Dokumenter/99-417/Referater/0417--Referat-afdelingsm&#xF8;de-22.08.2024--underskrevet.pdf)
                                            [0417, Referat ekstra ordinært afdelingsmøde  2022.pdf](https://vardebolig.dk/p/Files/Boligdata/Dokumenter/99-417/Referater/0417--Referat-ekstra-ordin&#xE6;rt-afdelingsm&#xF8;de--2022.pdf)
                                            [0417, Referat ekstraordinært afdelingsmøde 02.05.24, underskrevet.pdf](https://vardebolig.dk/p/Files/Boligdata/Dokumenter/99-417/Referater/0417--Referat-ekstraordin&#xE6;rt-afdelingsm&#xF8;de-02.05.24--underskrevet.pdf)
                                            [0417, Referat ekstraordinært afdelingsmøde 2022.pdf](https://vardebolig.dk/p/Files/Boligdata/Dokumenter/99-417/Referater/0417--Referat-ekstraordin&#xE6;rt-afdelingsm&#xF8;de-2022.pdf)
                                            [14.06.2023, Dispensation hegn udkast (1).pdf](https://vardebolig.dk/p/Files/Boligdata/Dokumenter/99-417/Referater/14.06.2023--Dispensation-hegn-udkast--1-.pdf)
                                            [Referat afdelingsmøde underskrevet 09.05.25, afd. 0417.pdf](https://vardebolig.dk/p/Files/Boligdata/Dokumenter/99-417/Referater/Referat-afdelingsm&#xF8;de-underskrevet-09.05.25--afd.-0417.pdf)
                                            [Referat afdelingsmøde underskrevet 2020, afd. 0417.pdf](https://vardebolig.dk/p/Files/Boligdata/Dokumenter/99-417/Referater/Referat-afdelingsm&#xF8;de-underskrevet-2020--afd.-0417.pdf)
                                            [Referat afdelingsmøde underskrevet 2021, afd. 0417.pdf](https://vardebolig.dk/p/Files/Boligdata/Dokumenter/99-417/Referater/Referat-afdelingsm&#xF8;de-underskrevet-2021--afd.-0417.pdf)
                                            [Referat afdelingsmøde underskrevet 2022, afd. 0417.pdf](https://vardebolig.dk/p/Files/Boligdata/Dokumenter/99-417/Referater/Referat-afdelingsm&#xF8;de-underskrevet-2022--afd.-0417.pdf)
                                            [Referat afdelingsmøde underskrevet 2023, afd. 0417.pdf](https://vardebolig.dk/p/Files/Boligdata/Dokumenter/99-417/Referater/Referat-afdelingsm&#xF8;de-underskrevet-2023--afd.-0417.pdf)

###

                                                Dagsordner

[Afd. 0417, dagsorden 2020.pdf](https://vardebolig.dk/p/Files/Boligdata/Dokumenter/99-417/Dagsordner/Afd.-0417--dagsorden-2020.pdf)
                                            [Afd. 0417, dagsorden 2021.pdf](https://vardebolig.dk/p/Files/Boligdata/Dokumenter/99-417/Dagsordner/Afd.-0417--dagsorden-2021.pdf)
                                            [Afd. 0417, dagsorden 2022.pdf](https://vardebolig.dk/p/Files/Boligdata/Dokumenter/99-417/Dagsordner/Afd.-0417--dagsorden-2022.pdf)
                                            [Afd. 0417, dagsorden 2023.pdf](https://vardebolig.dk/p/Files/Boligdata/Dokumenter/99-417/Dagsordner/Afd.-0417--dagsorden-2023.pdf)
                                            [Afd. 0417, dagsorden 2024, forslag.pdf](https://vardebolig.dk/p/Files/Boligdata/Dokumenter/99-417/Dagsordner/Afd.-0417--dagsorden-2024--forslag.pdf)
                                            [Afd. 0417, dagsorden 2024 ekstraordinært afdelingsmøde.pdf](https://vardebolig.dk/p/Files/Boligdata/Dokumenter/99-417/Dagsordner/Afd.-0417--dagsorden-2024-ekstraordin&#xE6;rt-afdelingsm&#xF8;de.pdf)
                                            [Afd. 0417, dagsorden 2024.pdf](https://vardebolig.dk/p/Files/Boligdata/Dokumenter/99-417/Dagsordner/Afd.-0417--dagsorden-2024.pdf)
                                            [Afd. 0417, dagsorden 2025.pdf](https://vardebolig.dk/p/Files/Boligdata/Dokumenter/99-417/Dagsordner/Afd.-0417--dagsorden-2025.pdf)

###

                                                Dokumenter

[0417, 2020, Vedligeholdelsesreglement, VBA, underskrevet.pdf](https://vardebolig.dk/p/Files/Boligdata/Dokumenter/99-417/Dokumenter/0417--2020--Vedligeholdelsesreglement--VBA--underskrevet.pdf)
                                            [Afd. 0417, Husorden 2023.pdf](https://vardebolig.dk/p/Files/Boligdata/Dokumenter/99-417/Dokumenter/Afd.-0417--Husorden-2023.pdf)
                                            [Afd. 0417, Råderetskatalog 2023.pdf](https://vardebolig.dk/p/Files/Boligdata/Dokumenter/99-417/Dokumenter/Afd.-0417--R&#xE5;deretskatalog-2023.pdf)
